For Sale By Auction | 10:00, 10 December 2025 | Lot 57

7 Pingle Wood Row, Station Road, Manea, March, Cambridgeshire PE15 0FP

*Guide | £485,000 (plus fees)

  • Detached House
  • 7 Bedrooms
  • Tenure: Freehold

Call the team on 01733 889833 for more information

Auction Date

Wed 10/12/2025

Auction Time

10:00

Auction Venue

Livestream Auction

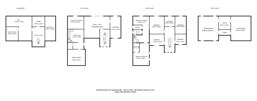
A detached executive five bedroom house with a two bedroom annexe set in 0.36 of an acre (stms) with field views

This detached house offers accommodation on four levels including five bedrooms, four reception rooms, large kitchen/breakfast room, laundry room, plant room, three en-suites annexe with two bedrooms, grounds of 0.36 of an acre (stms) and a double garage. The property is offered with vacant possession and benefits from field views. Manea is located north of Chatteris and offers a village shop and a rail link into Cambridge and Peterborough.

Tenure

Freehold

Basement

Hall, cinema room, plant room, laundry room and gym

Ground Floor

Hall, lounge, kitchen/breakfast room, annexe with living room and hall

First Floor

Landing four bedroom, bathroom, annexe two bedrooms and an en-suite.

Second Floor

Master bedroom with en-suite and a dressing room

Outside

Gardens of 0.36 of an acre (stms), double garage.

Council Tax Band

G

Energy Efficiency Rating (EPC)

Current Rating B

Services

Interested parties are requested to make their own enquiries to the relevant authorities as to the availability of services.

Local Authority

Fenland District Council

Solicitors

JMW Solicitors LLP, Ref: Russel Forward, Tel: 0330 029 4913

Important Notice to Prospective Buyers:

We draw your attention to the Special Conditions of Sale within the Legal Pack, referring to other charges in addition to the purchase price which may become payable. Such costs may include Search Fees, reimbursement of Sellers costs and Legal Fees, and Transfer Fees amongst others.

Additional Fees

Buyer's Premium - £1200 inc VAT payable on exchange of contracts.

Administration Charge - £1200 inc VAT payable on exchange of contracts.

Disbursements - Please see the legal pack for any disbursements listed that may become payable by the purchaser on completion.

View Larger Map

Disclaimer: The map preview provided above is for general guidance only and may not accurately reflect the exact location or surrounding buildings. Prospective buyers and interested parties are strongly advised to independently verify the precise location and surroundings before bidding.