For Sale By Auction | 10:00, 10 December 2025 | Lot 61

23 Throckmorton Road, Bungay, Suffolk NR35 1JN

*Guide | £123,000 (plus fees)

  • Terraced House
  • 3 Bedrooms
  • Tenure: Freehold

Call the team on 01603 505 100 for more information

Auction Date

Wed 10/12/2025

Auction Time

10:00

Auction Venue

Livestream Auction

Three bedroom mid-terrace house requiring updating in the desirable market town of Bungay

This ex-local authority mid terrace house is currently vacant and in need of updating. On the ground floor the entrance hall leads on to the open plan kitchen/dining area with bay window, lounge and storage, whilst upstairs the property has three bedrooms all off landing with family bathroom. With levelled parking space for two vehicles created at the front and a large garden to the rear accessed via the side passage or from the kitchen. Situated in a popular residential area close to local amenities, schools, and transport links, the property now requires a programme of works to update and offers a good opportunity for a developer or someone looking to take on a project to bring this family home back to life.

Tenure

Freehold

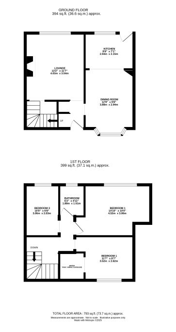
Ground floor

Entrance hall, dining room, kitchen, lounge with under stair storage space.

First Floor

Stairs up to landing with three bedrooms leading off, one housing access to the boiler storage, and family bathroom.

Outside

Space to the front of the property has been levelled to create parking for two vehicles, the side passage leads under the property giving access to the large private back garden with shed.

Council Tax Band

B

Viewings

Viewing are being arranged by appointment. The next opportunity to view is on Wednesday 7 January. Please contact the Norwich Office to book your appointment time

Energy Efficiency Rating (EPC)

Current Rating E

Services

Interested parties are requested to make their own enquiries to the relevant authorities as to the availability of services.

Local Authority

South Norfolk Council

Solicitors

Ascent Legal Manchester, One St. Peters Square, Ref: Ascent Legal Manchester, Tel: 0161 838 3105

Important Notice to Prospective Buyers:

We draw your attention to the Special Conditions of Sale within the Legal Pack, referring to other charges in addition to the purchase price which may become payable. Such costs may include Search Fees, reimbursement of Sellers costs and Legal Fees, and Transfer Fees amongst others.

Additional Fees

Buyer's Premium - £1560 inc VAT payable on exchange of contracts.

Administration Charge - £1200 inc VAT payable on exchange of contracts.

Disbursements - Please see the legal pack for any disbursements listed that may become payable by the purchaser on completion.

View Larger Map

Disclaimer: The map preview provided above is for general guidance only and may not accurately reflect the exact location or surrounding buildings. Prospective buyers and interested parties are strongly advised to independently verify the precise location and surroundings before bidding.