For Sale By Auction | 10:00, 10 December 2025 | Lot 101

7 Beach Road, Lowestoft, Suffolk NR32 1EA

*Guide | £275,000 - £325,000 (plus fees)

  • House of Multiple Occupation
  • 7 Bedrooms
  • Tenure: Freehold

Call the team on 01603 505 100 for more information

Auction Date

Wed 10/12/2025

Auction Time

10:00

Auction Venue

Livestream Auction

High-yielding seven-bedroom licenced HMO towards the centre of Lowestoft let to a housing association on a seven year lease producing £41,640 pa gross

This terraced house is located close to Lowestoft town centre and railway station it comprises seven bedrooms over three floors. The property benefits from a modern kitchen and a shared patio to the rear. It has been let to Serco on a six year 11 month lease. The property is generating a monthly rental of £3,470pcm (£41,640 per annum), delivering a strong yield. The property benefits from an HMO licence.

Tenure

Freehold

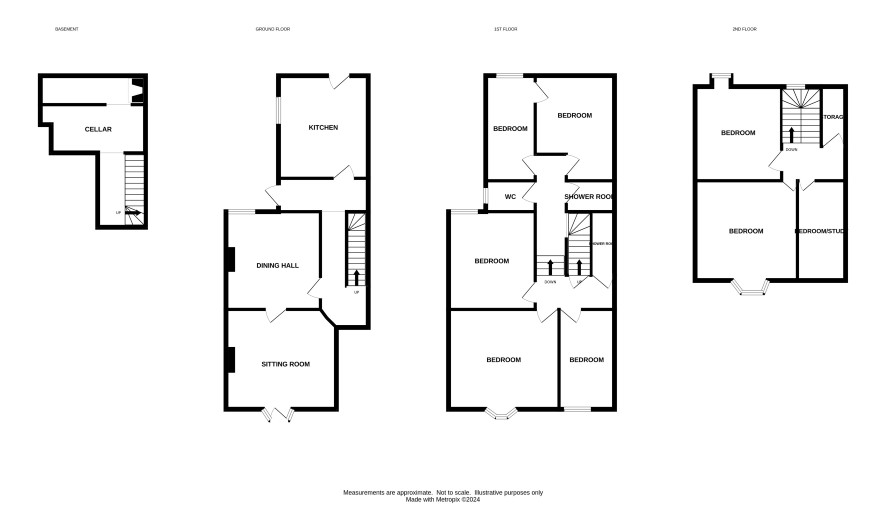
Ground Floor

Kitchen. dining room, living room, bathroom

First Floor

Four bedrooms, shower room, w.c.

Second Floor

Three bedrooms

Outside

Patio to the rear

Council Tax Band

B

Viewings

Viewings are available by appointment only. To book a viewing please contact the Norwich office.

Require a Mortgage or Loan?

We strongly advise that your finance is fully approved prior to bidding. Please be aware that an Agreement in Principle (AIP) may not be sufficient. Should your lender be unable to proceed post-auction, you risk losing your deposit and incurring significant costs. To ensure you are fully prepared, contact our team today to discuss auction finance options and secure funding before bidding.

Energy Efficiency Rating (EPC)

Current Rating E

Services

Interested parties are requested to make their own enquiries to the relevant authorities as to the availability of services.

Local Authority

East Suffolk Council

Solicitors

Leathes Prior (The Close), Ref: Alison Beales, Tel: 01603 281010

Important Notice to Prospective Buyers:

We draw your attention to the Special Conditions of Sale within the Legal Pack, referring to other charges in addition to the purchase price which may become payable. Such costs may include Search Fees, reimbursement of Sellers costs and Legal Fees, and Transfer Fees amongst others.

Additional Fees

Administration Charge - £1200 inc VAT payable on exchange of contracts.

Disbursements - Please see the legal pack for any disbursements listed that may become payable by the purchaser on completion.

View Larger Map

Disclaimer: The map preview provided above is for general guidance only and may not accurately reflect the exact location or surrounding buildings. Prospective buyers and interested parties are strongly advised to independently verify the precise location and surroundings before bidding.