For Sale By Auction | 10:00, 10 December 2025 | Lot 45a

Donthorn Cottage, 2 Campingland, Swaffham, Norfolk PE37 7RB

*Guide | £250,000 - £300,000 (plus fees)

  • Detached House
  • 3 Bedrooms
  • Tenure: Freehold

Call the team on 01553 777 773 for more information

Auction Date

Wed 10/12/2025

Auction Time

10:00

Auction Venue

Livestream Auction

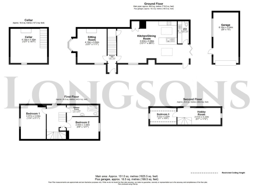
A detached extended cottage dating back to 1873 set on four levels extending to three bedrooms

This three bedroom detached cottage dates back to 1873 and provides a lounge, kitchen/diner, utility room, a basement, two bedrooms and a shower and on the second floor bedroom 3 and a hobbies room. Outside provides gardens to front and rear and a single garage. Swaffham is a market town situated on the A47 and offers shopping facilities with Norwich 30 miles and Kings Lynn 15 miles to the West.

Tenure

Freehold

Ground floor

Hall, lounge, kitchen/diner and a utility room.

Basement

Basement area

First floor

Landing, two bedrooms and a shower room.

Second floor

Bedroom 3 and a hobbies room.

Outside

gardens to front and rear and a single garage.

Council Tax Band

B

Energy Efficiency Rating (EPC)

Current Rating E

Services

Interested parties are requested to make their own enquiries to the relevant authorities as to the availability of services.

Local Authority

Breckland Council

Solicitors

Leathes Prior (The Close), Ref: Joanna Allen, Tel: 01603 281009

Offered in association with

Longsons (Swaffham)

Important Notice to Prospective Buyers:

We draw your attention to the Special Conditions of Sale within the Legal Pack, referring to other charges in addition to the purchase price which may become payable. Such costs may include Search Fees, reimbursement of Sellers costs and Legal Fees, and Transfer Fees amongst others.

Additional Fees

Buyer's Premium - £1200 inc VAT payable on exchange of contracts.

Administration Charge - £1200 inc VAT payable on exchange of contracts.

Disbursements - Please see the legal pack for any disbursements listed that may become payable by the purchaser on completion.

View Larger Map

Disclaimer: The map preview provided above is for general guidance only and may not accurately reflect the exact location or surrounding buildings. Prospective buyers and interested parties are strongly advised to independently verify the precise location and surroundings before bidding.