For Sale By Auction | 10:00, 10 December 2025 | Lot 51a

19 Newark Road, Peterborough, Cambridgeshire PE1 5YJ

*Guide | £95,000 (plus fees)

  • Semi-Detached House
  • 3 Bedrooms
  • Tenure: Freehold

Call the team on 01733 889833 for more information

Auction Date

Wed 10/12/2025

Auction Time

10:00

Auction Venue

Livestream Auction

A three bedroom semi-detached house in need of major renovation throughout.

This three bedroom semi-detached house is in need of major renovations ideal for a builder investor and offers lounge/diner, kitchen, conservatory with three bedrooms and a shower room on the first floor. The kitchen and bathroom need replacing together with some of the ceilings. Newark Road is located with Sainsburys close by and the city centre providing further facilities including a main line rail link into London Kings Cross and the North.

Tenure

Freehold

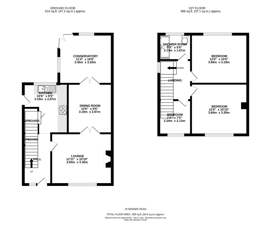
Ground floor

Hall, lounge, dining room, conservatory and a kitchen.

First floor

Landing, three bedrooms and a shower room.

Outside

Gardens and a dilapidated garage.

Council Tax Band

A

Energy Efficiency Rating (EPC)

Current Rating Please refer to Legal Pack

Services

Interested parties are requested to make their own enquiries to the relevant authorities as to the availability of services.

Local Authority

Peterborough City Council

Solicitors

TLT (Barclays), 1 Redcliff Street, Ref: TLT (Barclays), Tel: 0117 917 7777

Important Notice to Prospective Buyers:

We draw your attention to the Special Conditions of Sale within the Legal Pack, referring to other charges in addition to the purchase price which may become payable. Such costs may include Search Fees, reimbursement of Sellers costs and Legal Fees, and Transfer Fees amongst others.

Additional Fees

Buyer's Premium - £1500 inc VAT payable on exchange of contracts.

Administration Charge - £1200 inc VAT payable on exchange of contracts.

Disbursements - Please see the legal pack for any disbursements listed that may become payable by the purchaser on completion.

View Larger Map

Disclaimer: The map preview provided above is for general guidance only and may not accurately reflect the exact location or surrounding buildings. Prospective buyers and interested parties are strongly advised to independently verify the precise location and surroundings before bidding.