For Sale By Auction | 10:00, 11 February 2026

243 Norwich Road, Fakenham, Norfolk NR21 8LY

*Guide | £200,000 (plus fees)

  • Detached Bungalow
  • 3 Bedrooms
  • Tenure: Freehold

Call the team on 01553 777 773 for more information

Auction Date

Wed 11/02/2026

Auction Time

10:00

Auction Venue

Livestream Auction

An ideal project for a builder developer. A detached three bedroom bungalow in need of renovation offered with vacant possession

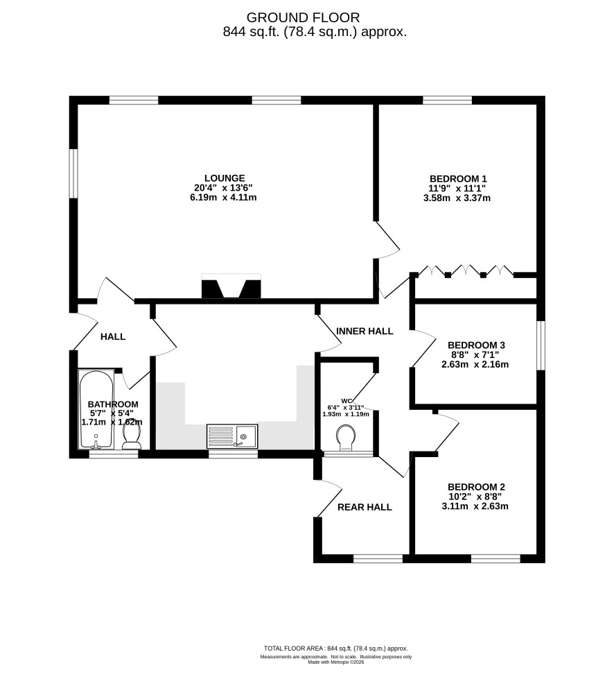
This three bedroom detached bungalow offers generous accommodation with a lounge, kitchen, bathroom and a separate w.c. The property is in need of renovation throughout with a garden at the rear and single garage. An ideal project for a developer builder. Fakenham offer various facilities together with its Race Course. The town is well placed for access to the North Norfolk coast.

Tenure

Freehold

Accommodation

Hall, lounge, kitchen, three bedrooms, bathroom and separate w.c.

Outside

Parking area to front. Single garage and gardens to the rear.

Council Tax Band

C

Services

Interested parties are requested to make their own enquiries to the relevant authorities as to the availability of services.

Local Authority

North Norfolk District Council

Solicitors

Stanton Partners, Ref: Claire Stanton, Tel: 0191 427 0770

Important Notice to Prospective Buyers:

We draw your attention to the Special Conditions of Sale within the Legal Pack, referring to other charges in addition to the purchase price which may become payable. Such costs may include Search Fees, reimbursement of Sellers costs and Legal Fees, and Transfer Fees amongst others.

Additional Fees

Buyer's Premium - £1200 inc VAT payable on exchange of contracts.

Administration Charge - £1200 inc VAT payable on exchange of contracts.

Disbursements - Please see the legal pack for any disbursements listed that may become payable by the purchaser on completion.

View Larger Map

Disclaimer: The map preview provided above is for general guidance only and may not accurately reflect the exact location or surrounding buildings. Prospective buyers and interested parties are strongly advised to independently verify the precise location and surroundings before bidding.