For Sale By Auction | 1.00pm, 26 March 2025 | Lot 2

8A Church Street, Driffield, East Yorkshire, YO25 6UF

Sold

  • Terraced House
  • 2 Bedrooms
  • Tenure: Freehold.

Call the team on 0845 400 9900 for more information

Auction Date

Wed 26/03/2025

Auction Time

1.00pm

Auction Venue

Online

A compact two-bedroom mid-terraced property in need of refurbishment.

This compact mid-terrace house offers investors and property renovators an excellent opportunity to purchase a low-value property to refurbish and add to their portfolio or flip for a profit. The property requires a comprehensive programme of modernisation including (but not limited to) replacement of windows, replacement of kitchen and bathroom fittings, redecoration, insulation and recarpeting. It does however benefit from gas fired central heating!

Tenure

Freehold.

Location

Church Street is located between Westgate and Victoria Road and, as such, is conveniently placed within comfortable walking distance of all main amenities the Town has to offer.

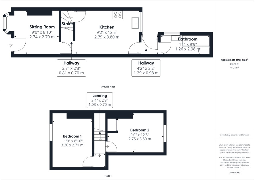
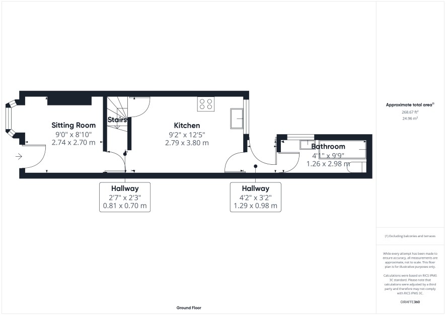
Accommodation

Ground Floor: Sitting room, Kitchen, Lobby, Bathroom First Floor: Two double bedrooms. Outside: Small forecourt and good sized rear garden.

Services

All mains services are connected to the property but have not been tested.

Tenure

We understand the property to be freehold. Vacant possession on completion.

Council Tax

Council Tax is payable to the East Riding of Yorkshire Council. Online enquiry lists the property in the Council Tax Property Bandings List in Valuation Band A.*

Viewing

Strictly by appointment with the auctioneers on 0845 400 9900.

Method of Sale

The property will be offered for sale by online auction with bidding commencing at 12.00 pm on Monday, 24th March 2025, and closing on Wednesday, 26th March, at 1.00 pm. For further legal information relating to this lot, please go to auctionhouse.co.uk/hullandeastyorkshire.

Conditions of Sale

The property will be sold subject to conditions of sale, copies of which will be available for inspection at the auctioneer’s offices, with the solicitors and online at auctionhouse.co.uk/hullandeastyorkshire prior to the date of the auction.

Energy Efficiency Rating (EPC)

Current Rating TBC

Services

Interested parties are invited to make their own enquiries to the relevant authorities as to the availability of the services.

Local Authority

East Riding of Yorkshire Council

Solicitors

Wood Sherwood Solicitors, 6-10, Railway Street, Pocklington, York, YO42 2QZ, Ref: Richard Gooch, Tel: 01759 302 791

Important Notice to Prospective Buyers:

We draw your attention to the Special Conditions of Sale within the Legal Pack, referring to other charges in addition to the purchase price which may become payable. Such costs may include Search Fees, reimbursement of Sellers costs and Legal Fees, and Transfer Fees amongst others.

Additional Fees

Buyer's Premium - The purchaser will be required to pay a buyer’s premium of £600 (£500 + VAT) in addition to the purchase price of the property.

Administration Charge - The purchaser will be required to pay an administration charge of £900 (£750 plus VAT) in addition to the purchase price of the property.

Disbursements - Please see the legal pack for any disbursements listed that may become payable by the purchaser on completion.

Please see the legal pack for any disbursements listed that may become payable by the purchaser on completion.

View Larger Map

Disclaimer: The map preview provided above is for general guidance only and may not accurately reflect the exact location or surrounding buildings. Prospective buyers and interested parties are strongly advised to independently verify the precise location and surroundings before bidding.