For Sale By Auction | 1.00pm, 03 December 2025 | Lot 11

8 South View, Patrington Haven, Patrington, East Yorkshire, HU12 0PX

*Guide | £75,000 (plus fees)

  • Terraced House
  • 1 Bedroom
  • Tenure: Freehold with vacant possession.

Call the team on 0845 400 9900 for more information

Auction Date

Wed 03/12/2025

Auction Time

1.00pm

Auction Venue

Online

A cosy mid-terrace house within the village of Patrington Haven.

This cosy one bedroom mid-terrace house provides an opportunity for investors to secure a property requiring minimal work, within a peaceful village location. The accommodation briefly comprises Kitchen, Living Room, Sunroom, Bedroom and Bathroom. The property benefits from double glazing and gas central heating.

Tenure

Freehold with vacant possession.

Location

Patrington Haven is a small village located approximately 9 miles south-east of the town of Hedon and 2 miles south-west of the North Sea coast. The village is primarily known for Patrington Haven Leisure Park, which features a range of facilities including a gym, spa, bar and restaurant. The village itself benefits from a village shop, a post office, and a primary school.

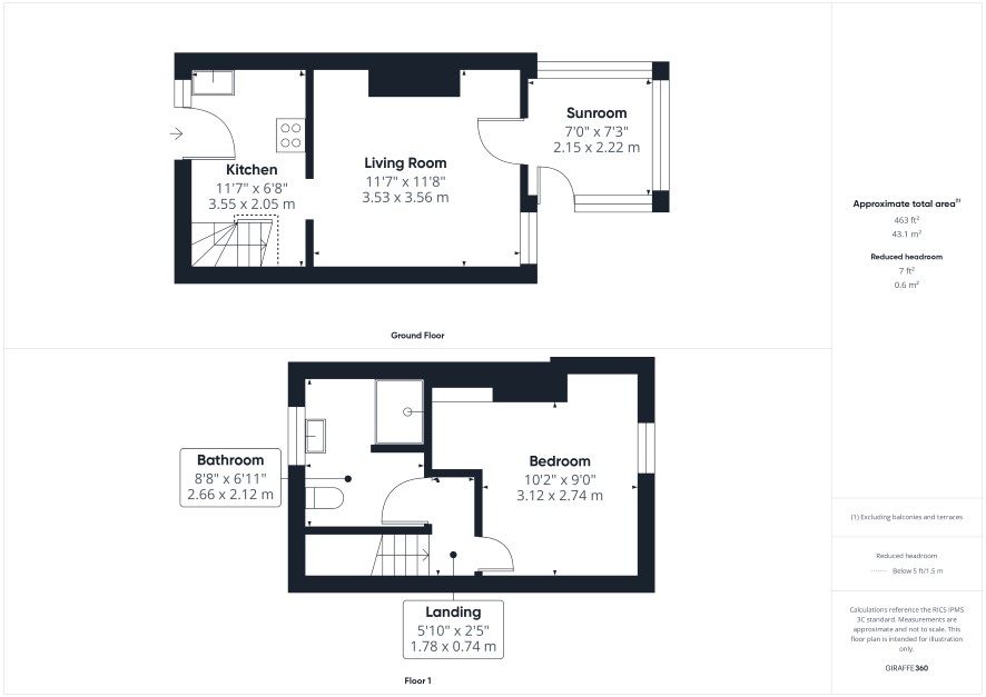
Accommodation

Kitchen - 11'7" x 6'8" (3.55m x 2.05m) Range of wall and base units. Electric hob and oven with extractor fan above. Radiator. Living Room - 11'7" x 11'8" (3.53m x 3.56m) Window to the rear. Radiator. Sunroom - 7'0" x 7'3" (2.15m x 2.22m) Door to the rear. Bedroom - 10'2" x 9'0" (3.12m x 2.74m) Window to the rear. Radiator. Bathroom - 8'8" x 6'11" (2.66m x 2.12m) Walk-in shower, low-level W/C, pedestal wash hand basin, chrome radiator. Combi-boiler. Window to the front.

Outside

Gravelled rear garden.

Services

The property is believed to be connected to mains gas, electricity, water and drainage. None of the services or installations has been tested.

Viewings

Strictly by appointment with the Auctioneers on 0845 400 9900.

Council Tax

Council Tax is payable to East Riding of Yorkshire Council. The house is shown in the Council Tax Property Bandings List in Valuation Band A.

Method of Sale

The property will be offered for sale by online auction with bidding commencing at 12 noon on Monday, 1st December 2025 and closing on Wednesday, 3rd December 2025 at 1.00pm. For further legal information relating to this lot, please log on to auctionhouse.co.uk/hullandeastyorkshire.

Conditions of Sale

The property will be sold subject to conditions of sale, copies of which will be available for inspection at the auctioneer’s offices, with the solicitors and online at auctionhouse.co.uk/hullandeastyorkshire before the date of the auction.

Guide Price

Guides are provided as an indication of each seller's minimum expectation. They are not necessarily figures that a property will sell for and may change at any time before the auction. Each property will be offered subject to a Reserve (a figure below which the Auctioneer cannot sell the property during the auction), which we expect will be set within the Guide Range or no more than 10% above a single-figure guide.

Energy Efficiency Rating (EPC)

Current Rating D68

Services

Interested parties are invited to make their own enquiries to the relevant authorities as to the availability of the services.

Local Authority

East Riding of Yorkshire Council

Solicitors

Sanderson's Solicitors, 187 Queen Street, Withernsea, East Yorkshire, HU19 2JR, Ref: David Macnamara , Tel: 01482 324 662

Important Notice to Prospective Buyers:

We draw your attention to the Special Conditions of Sale within the Legal Pack, referring to other charges in addition to the purchase price which may become payable. Such costs may include Search Fees, reimbursement of Sellers costs and Legal Fees, and Transfer Fees amongst others.

Additional Fees

Buyer's Premium - The purchaser will be required to pay a buyer’s premium of £720 (£600 + VAT) in addition to the purchase price of the property.

Administration Charge - The purchaser will be required to pay an administration charge of 0.3% subject to a minimum of £900 (£750 plus VAT) in addition to the purchase price of the property.

Disbursements - Please refer to the legal pack for any disbursements listed that may become payable by the purchaser upon completion.

Please see the legal pack for any disbursements listed that may become payable by the purchaser on completion.

View Larger Map

Disclaimer: The map preview provided above is for general guidance only and may not accurately reflect the exact location or surrounding buildings. Prospective buyers and interested parties are strongly advised to independently verify the precise location and surroundings before bidding.