For Sale By Auction | 10:00, 12 September 2024 | Lot 162

2 Castle Street, Sleaford, Lincolnshire, NG34 7QE

*Guide | £40,000+ (plus fees)

  • Terraced House
  • 4 Bedrooms
  • Tenure: Freehold

Call the team on 020 7625 9007 for more information

Auction Date

Thu 12/09/2024

Auction Time

10:00

Auction Venue

Live Stream

Viewing Times:

Wed 28 Aug

13:00-13:30

Sat 31 Aug

13:00-13:30

Fri 6 Sep

13:00-13:30

Mon 9 Sep

13:00-13:30

A Vacant Four Bedroom Mid Terrace House

The property comprises a four bedroom mid terrace house arranged over ground and two upper floors.

Tenure

Freehold

6 Week Completion Available

Location

The property is situated on a residential road close to local shops and amenities. There are numerous green open spaces that are within easy reach. Transport links are provided by Sleaford rail station.

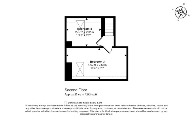
Accommodation

Ground Floor Reception Room Kitchen First Floor Two Bedrooms Bathroom Second Floor Two Bedrooms

Exterior

The property benefits from a rear yard.

Energy Efficiency Rating (EPC)

Current Rating E

Services

Interested parties are requested to make their own enquiries to the relevant authorities as to the availability of services.

Important Notice to Prospective Buyers:

We draw your attention to the Special Conditions of Sale within the Legal Pack, referring to other charges in addition to the purchase price which may become payable. Such costs may include Search Fees, reimbursement of Sellers costs and Legal Fees, and Transfer Fees amongst others.

Additional Fees

Administration Charge - Purchasers will be required to pay an administration fee of £1,800 inc VAT

Disbursements - Please see the legal pack for any disbursements listed that may become payable by the purchaser on completion.

View Larger Map

Disclaimer: The map preview provided above is for general guidance only and may not accurately reflect the exact location or surrounding buildings. Prospective buyers and interested parties are strongly advised to independently verify the precise location and surroundings before bidding.