For Sale By Auction | 09:30, 19 March 2025

14 Edinburgh Road, Brighton, East Sussex, BN2 3HY

*Guide | £475,000+ (plus fees)

  • Terraced House
  • 6 Bedrooms
  • Tenure: Freehold

Call the team on 020 7625 9007 for more information

Auction Date

Wed 19/03/2025

Auction Time

09:30

Auction Venue

Live Stream

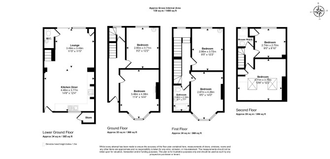
A Mid Terrace House Arranged to Provide A Six Bedroom Student HMO Fully Let Producing £54,288 Per Annum

The property comprises a mid terrace house arranged to provide a six bedroom HMO arranged over lower ground, ground and two upper floors.

Tenure

Freehold

Location

The property is situated on a residential road close to local shops and amenities. The open spaces of The Level are within easy reach. Transport links are provided by Brighton rail station.

Accommodation

Lower Ground Floor Communal Reception Room with Open Plan Kitchen WC Ground Floor Two Letting Rooms First Floor Two Letting Rooms Bathroom Second Floor Two Letting Rooms Bathroom

Exterior

The property benefits from a rear garden.

Tenancy

The property is subject to a joint tenancy at a rent of £54,288 per annum.

Energy Efficiency Rating (EPC)

Current Rating C

Services

Interested parties are requested to make their own enquiries to the relevant authorities as to the availability of services.

Important Notice to Prospective Buyers:

We draw your attention to the Special Conditions of Sale within the Legal Pack, referring to other charges in addition to the purchase price which may become payable. Such costs may include Search Fees, reimbursement of Sellers costs and Legal Fees, and Transfer Fees amongst others.

Additional Fees

Administration Charge - Purchasers will be required to pay an administration fee of £1,500 inc VAT

Disbursements - Please see the legal pack for any disbursements listed that may become payable by the purchaser on completion.

View Larger Map

Disclaimer: The map preview provided above is for general guidance only and may not accurately reflect the exact location or surrounding buildings. Prospective buyers and interested parties are strongly advised to independently verify the precise location and surroundings before bidding.