For Sale By Auction | 10:00, 20 March 2025 | Lot 179

22 Buffery Road, Dudley, West Midlands, DY2 8ED

*Guide | £85,000+ (plus fees)

  • Terraced House
  • 3 Bedrooms
  • Tenure: Freehold

Call the team on 020 7625 9007 for more information

Auction Date

Thu 20/03/2025

Auction Time

10:00

Auction Venue

Live Stream

Viewing Times:

Wed 12 Mar

12:00-12:30

Sat 15 Mar

12:00-12:30

Tue 18 Mar

12:00-12:30

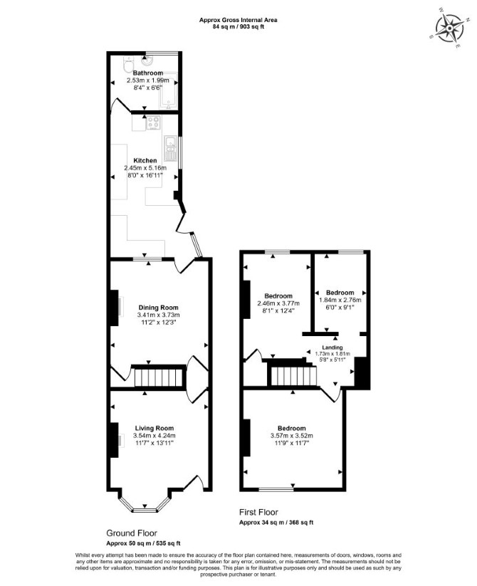
A Three Bedroom Mid Terrace House Subject to an Assured Shorthold Tenancy Producing £10,399.92 Per Annum

The property comprises a three bedroom mid terrace house arranged over ground and first floors.

Tenure

Freehold

Location

The property is situated on a residential road close to local shops and amenities. The open spaces of Buffery Park are within easy reach. Transport links are provided by Dudley Port rail station.

Accommodation

Ground Floor Two Reception Rooms Kitchen Bathroom First Floor Three Bedrooms

Exterior

The property benefits from a rear garden.

Tenancy

The property is subject to an Assured Shorthold Tenancy at a rent of £866.66 per calendar month.

Energy Efficiency Rating (EPC)

Current Rating E

Services

Interested parties are requested to make their own enquiries to the relevant authorities as to the availability of services.

Important Notice to Prospective Buyers:

We draw your attention to the Special Conditions of Sale within the Legal Pack, referring to other charges in addition to the purchase price which may become payable. Such costs may include Search Fees, reimbursement of Sellers costs and Legal Fees, and Transfer Fees amongst others.

Additional Fees

Administration Charge - Purchasers will be required to pay an administration fee of £1,800 inc VAT

Disbursements - Please see the legal pack for any disbursements listed that may become payable by the purchaser on completion.

View Larger Map

Disclaimer: The map preview provided above is for general guidance only and may not accurately reflect the exact location or surrounding buildings. Prospective buyers and interested parties are strongly advised to independently verify the precise location and surroundings before bidding.