Withdrawn | Lot 189

16 Barnsley Road, Wombwell, Barnsley, South Yorkshire, S73 8DD

Withdrawn

  • Terraced House
  • 4 Bedrooms
  • Tenure: Freehold

Call the team on 020 7625 9007 for more information

Auction Date

Thu 20/03/2025

Auction Time

10:00

Auction Venue

Live Stream

Viewing Times:

Thu 6 Mar

14:00-14:30

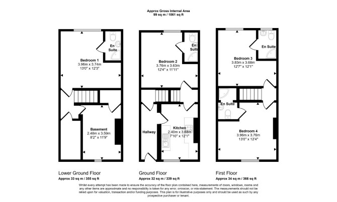
A Four Bedroom Mid Terrace HMO Fully Let Producing £23,400 Per Annum (Reflecting a 23.4% Yield on Guide)

The property comprises a mid terraced building arranged as a four bedroom HMO arranged over lower ground, ground and first floors.

Tenure

Freehold

Location

The property is situated on a residential road close to local shops and amenities. The open spaces of Netherwood Country Park are within easy reach. Transport links are provided by Wombwell rail station.

Accommodation

Lower Ground Floor Bedroom (with En-Suite) Ground Floor Bedroom (with En-Suite) First Floor Two Bedrooms (Both with En-Suite)

Tenancy

The property is subject to individual tenancies producing a combined rent of £23,400 per annum.

Energy Efficiency Rating (EPC)

Current Rating D

Services

Interested parties are requested to make their own enquiries to the relevant authorities as to the availability of services.

Important Notice to Prospective Buyers:

We draw your attention to the Special Conditions of Sale within the Legal Pack, referring to other charges in addition to the purchase price which may become payable. Such costs may include Search Fees, reimbursement of Sellers costs and Legal Fees, and Transfer Fees amongst others.

Additional Fees

Administration Charge - Purchasers will be required to pay an administration fee of £1,500 inc VAT

Disbursements - Please see the legal pack for any disbursements listed that may become payable by the purchaser on completion.

View Larger Map

Disclaimer: The map preview provided above is for general guidance only and may not accurately reflect the exact location or surrounding buildings. Prospective buyers and interested parties are strongly advised to independently verify the precise location and surroundings before bidding.