For Sale By Auction | 09:30, 23 April 2025 | Lot 67

Flat 20 Corsica Hall, College Road, Seaford, East Sussex, BN25 1JX

*Guide | £150,000+ (plus fees)

  • Apartment
  • 1 Bedroom
  • Tenure: Leasehold. The property is held on a 125 year lease from 25th March 2006 (thus approximately 106 years unexpired).

Call the team on 020 7625 9007 for more information

Auction Date

Wed 23/04/2025

Auction Time

09:30

Auction Venue

Live Stream

Viewing Times:

Sat 12 Apr

14:00-14:30

Sat 19 Apr

14:00-14:30

A Vacant Lower Ground Floor One Bedroom Flat

The property comprises a lower ground floor one bedroom flat situated within a grade II listed building arranging over lower ground, ground and two upper floors. The property requires a program of refurbishment.

Tenure

Leasehold. The property is held on a 125 year lease from 25th March 2006 (thus approximately 106 years unexpired).

Location

The property is situated on a residential road close to local shops and amenities. The open spaces of Seaford Beach and The Salts Recreation Ground are within easy reach. Transport links are provided by Seaford rail station.

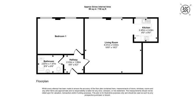
Accommodation

Lower Ground Floor Reception Room Kitchen Bedroom Bathroom G.I.A Approximately 67 sq m (721 sq ft)

Exterior

The property benefits from a patio area and allocated parking.

Energy Efficiency Rating (EPC)

Current Rating D

Services

Interested parties are requested to make their own enquiries to the relevant authorities as to the availability of services.

Important Notice to Prospective Buyers:

We draw your attention to the Special Conditions of Sale within the Legal Pack, referring to other charges in addition to the purchase price which may become payable. Such costs may include Search Fees, reimbursement of Sellers costs and Legal Fees, and Transfer Fees amongst others.

Additional Fees

Administration Charge - Purchasers will be required to pay an administration fee of £1,500 inc VAT

Disbursements - Please see the legal pack for any disbursements listed that may become payable by the purchaser on completion.

View Larger Map

Disclaimer: The map preview provided above is for general guidance only and may not accurately reflect the exact location or surrounding buildings. Prospective buyers and interested parties are strongly advised to independently verify the precise location and surroundings before bidding.