Withdrawn | Lot 114

Flat 2 Retreat Gardens, Crowmarsh Gifford, Wallingford, Oxfordshire, OX10 8HE

Withdrawn

  • Flat
  • 2 Bedrooms
  • Tenure: Leasehold. The property is held on a 999 year lease,

Call the team on 020 7625 9007 for more information

Auction Date

Wed 23/04/2025

Auction Time

09:30

Auction Venue

Live Stream

Viewing Times:

Thu 10 Apr

12:00-12:30

Wed 16 Apr

12:00-12:30

Sat 19 Apr

10:00-10:30

Tue 22 Apr

12:00-12:30

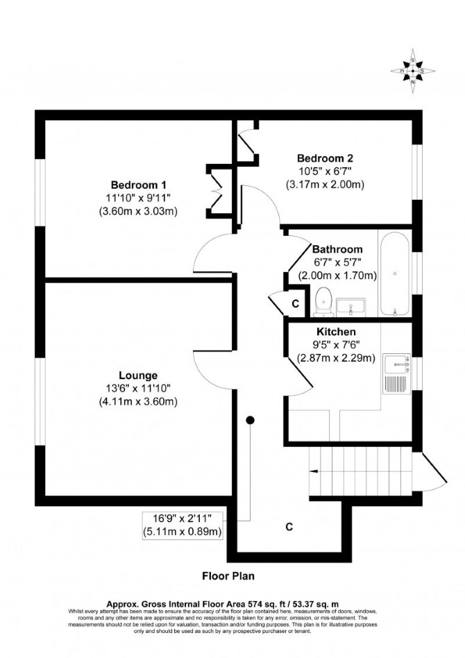
A Vacant First Floor Two Bedroom Flat

The property comprises a first floor two bedroom flat situated within a semi detached building arranged over ground and first floors.

Tenure

Leasehold. The property is held on a 999 year lease,

Location

The property is situated on a residential road close to local shops and amenities. The open spaces of Kine Croft Park are within easy reach. Transport links are provided by Didcot Parkway rail station and the A4074.

Accommodation

First Floor Reception Room Kitchen Two Bedrooms Bathroom

Energy Efficiency Rating (EPC)

Current Rating C

Services

Interested parties are requested to make their own enquiries to the relevant authorities as to the availability of services.

Important Notice to Prospective Buyers:

We draw your attention to the Special Conditions of Sale within the Legal Pack, referring to other charges in addition to the purchase price which may become payable. Such costs may include Search Fees, reimbursement of Sellers costs and Legal Fees, and Transfer Fees amongst others.

Additional Fees

Administration Charge - Purchasers will be required to pay an administration fee of £1,500 inc VAT

Disbursements - Please see the legal pack for any disbursements listed that may become payable by the purchaser on completion.

View Larger Map

Disclaimer: The map preview provided above is for general guidance only and may not accurately reflect the exact location or surrounding buildings. Prospective buyers and interested parties are strongly advised to independently verify the precise location and surroundings before bidding.