Withdrawn | Lot 196

24-26 High Street, Stalham, Norwich, Norfolk, NR12 9AN

Withdrawn

  • Retail Property (high street)
  • Tenure: Freehold

Call the team on 020 7625 9007 for more information

Auction Date

Thu 24/04/2025

Auction Time

10:00

Auction Venue

Live Stream

An End of Terrace Building Internally Arranged to Provide a Ground Floor Shop Offered with Vacant Possession and Two Self-Contained One Bedroom Flats Above (Both Sold Off on Long Leases). Potential for Development of the Rear Building and the Second Floor (Subject to Obtaining all Relevant Consents)

The property comprises an end of terrace building arranged to provide a ground floor shop and two self contained one bedroom flats above (both sold off).

Tenure

Freehold

Location

The property is situated on a mixed use road close to local shops and amenities. There are numerous green open spaces that are within easy reach. Transport links are provided by the A47 to the south.

Accommodation

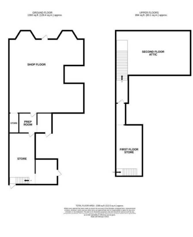
Ground Floor Shop Floor Prep Room Store Rear Room First Floor Store Room 2 x One Bedroom Flats (both sold off) Second Floor Attic

Energy Efficiency Rating (EPC)

Current Rating C

Services

Interested parties are requested to make their own enquiries to the relevant authorities as to the availability of services.

Important Notice to Prospective Buyers:

We draw your attention to the Special Conditions of Sale within the Legal Pack, referring to other charges in addition to the purchase price which may become payable. Such costs may include Search Fees, reimbursement of Sellers costs and Legal Fees, and Transfer Fees amongst others.

Additional Fees

Administration Charge - Purchasers will be required to pay an administration fee of £1,800 inc VAT

Disbursements - Please see the legal pack for any disbursements listed that may become payable by the purchaser on completion.

View Larger Map

Disclaimer: The map preview provided above is for general guidance only and may not accurately reflect the exact location or surrounding buildings. Prospective buyers and interested parties are strongly advised to independently verify the precise location and surroundings before bidding.