Withdrawn | Lot 214

Flat 16C Millfield House, 68-84 Hylton Road, Sunderland, Tyne and Wear, SR4 7BB

Withdrawn

  • Studio
  • 1 Bedroom
  • Tenure: Leasehold. The property is held on a 250 year lease from 1st July 2013 (thus approximately 238 years unexpired).

Call the team on 020 7625 9007 for more information

Auction Date

Thu 24/04/2025

Auction Time

10:00

Auction Venue

Live Stream

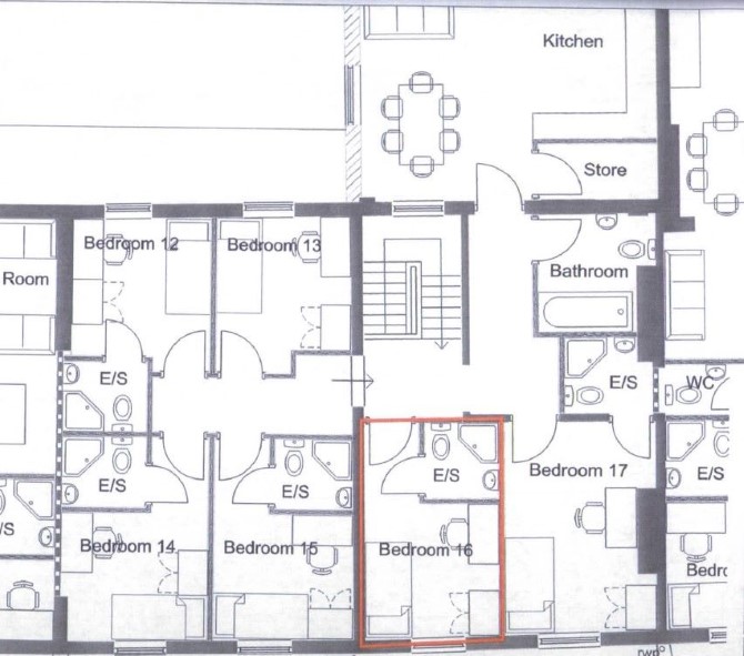
A First Floor Student Accommodation Unit Subject to an Assured Shorthold Tenancy Producing £5,720 Per Annum Equivalent

The property comprises a first floor student accommodation unit situated within a purpose built block arranged over ground and four upper floors.

Tenure

Leasehold. The property is held on a 250 year lease from 1st July 2013 (thus approximately 238 years unexpired).

Location

The property is situated on a mixed use road close to local shops and amenities. The open spaces of Pocket Park are within easy reach. Transport links are provided by Sunderland rail station.

Accommodation

First Floor Bedroom (With En-Suite) Communal Reception Room Communal Kitchen

Tenancy

The property is subject to an Assured Shorthold Tenancy for a term of 357 days expiring on the 29th August 2025 at a rent of £110 per calendar week.

Energy Efficiency Rating (EPC)

Current Rating D

Services

Interested parties are requested to make their own enquiries to the relevant authorities as to the availability of services.

Important Notice to Prospective Buyers:

We draw your attention to the Special Conditions of Sale within the Legal Pack, referring to other charges in addition to the purchase price which may become payable. Such costs may include Search Fees, reimbursement of Sellers costs and Legal Fees, and Transfer Fees amongst others.

Additional Fees

Administration Charge - Purchasers will be required to pay an administration fee of £1,500 inc VAT

Disbursements - Please see the legal pack for any disbursements listed that may become payable by the purchaser on completion.

View Larger Map

Disclaimer: The map preview provided above is for general guidance only and may not accurately reflect the exact location or surrounding buildings. Prospective buyers and interested parties are strongly advised to independently verify the precise location and surroundings before bidding.