For Sale By Auction | 09:30, 23 April 2025 | Lot 25A

14 Spencer Road, Chiswick, London, W4 3SN

Sold £1,230,000

  • Detached House
  • 5 Bedrooms
  • Tenure: Freehold

Call the team on 020 7625 9007 for more information

Auction Date

Wed 23/04/2025

Auction Time

09:30

Auction Venue

Live Stream

Viewing Times:

Thu 10 Apr

13:30-14:30

Wed 16 Apr

13:30-14:30

Thu 17 Apr

13:30-14:00

Tue 22 Apr

13:30-14:30

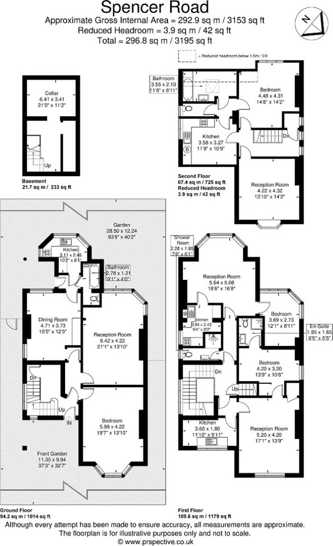
A Detached Building Arranged to Provide Four Flats (1 x Two Bedrooms, 3 x One Bedroom) Part Let Producing £10,584 Per Annum

The property comprises a detached building arranged to provide four flats (1 x two bedrooms, 3 x one bedrooms) over lower ground, ground and two upper floors.

Tenure

Freehold

Location

The property is situated on a residential road close to local shops and amenities. The open spaces of Kew Gardens are within easy reach. Transport links are provided by Kew Gardens underground (District line) and overground stations and Kew Bridge rail station.

Accommodation

Lower Ground Floor Basement G.I.A. Approximately 21 sq m/ 233 sq ft Flat 1 - Ground Floor Reception Room Kitchen Two Bedrooms Bathroom G.I.A. Approximately 94 sq m/ 1,014 sq ft Flat 2 - First Floor Reception Room Kitchen Bedroom Bathroom G.I.A. Approximately 54 sq m/ 590 sq ft Flat 3 - First Floor Reception Room Kitchen Bedroom Bathroom G.I.A. Approximately 54 sq m/ 590 sq ft Flat 4 - Second Floor Reception Room Kitchen Bedroom Bathroom Separate WC G.I.A. Approximately 63 sq m/ 725 sq ft Total G.I.A. Approximately 286 sq m/ 3,078 sq ft

Tenancy

Flat 2 is subject to a regulated tenancy at a rent of £882 per calendar month.

Services

Interested parties are requested to make their own enquiries to the relevant authorities as to the availability of services.

Important Notice to Prospective Buyers:

We draw your attention to the Special Conditions of Sale within the Legal Pack, referring to other charges in addition to the purchase price which may become payable. Such costs may include Search Fees, reimbursement of Sellers costs and Legal Fees, and Transfer Fees amongst others.

Additional Fees

Administration Charge - Purchasers will be required to pay an administration fee of £1,500 inc VAT

Disbursements - Please see the legal pack for any disbursements listed that may become payable by the purchaser on completion.

View Larger Map

Disclaimer: The map preview provided above is for general guidance only and may not accurately reflect the exact location or surrounding buildings. Prospective buyers and interested parties are strongly advised to independently verify the precise location and surroundings before bidding.