For Sale By Auction | 09:30, 23 April 2025 | Lot 34A

24 Luton Road, Chatham, Kent, ME4 5AA

Sold £199,000

  • Terraced House
  • 6 Bedrooms
  • Tenure: Freehold

Call the team on 020 7625 9007 for more information

Auction Date

Wed 23/04/2025

Auction Time

09:30

Auction Venue

Live Stream

Viewing Times:

Tue 15 Apr

12:00-12:30

Thu 17 Apr

12:00-12:30

Sat 19 Apr

10:00-10:30

Tue 22 Apr

12:00-12:30

A Vacant Mid Terrace Building Arranged to Provide a Ground Floor Shop and a Three Bedroom Split Level Flat. Potential for Re-Development (Subject to Obtaining all Relevant Consents)

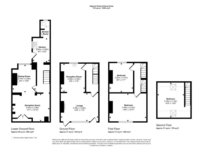
The property comprises a mid terrace building arranged to provide a ground floor shop and a three bedroom split level flat all arranging over lower ground, ground and two upper floors.

Tenure

Freehold

6 Week Completion Available

Location

The property is situated on a residential road close to local shops and amenities. The open spaces of Gillingham Park are within easy reach. Transport links are provided by Chatham rail station.

Accommodation

Lower Ground Floor Through Reception Room Kitchen Bathroom (Not fitted) Ground Floor Retail Unit First Floor Two Bedrooms Second Floor Bedroom

Exterior

The property benefits from a rear yard and off street parking to the rear.

We understand there may be potential to convert the existing property into 3 flats and to develop to the rear of the property (subject to obtaining all relevant consents).

Energy Efficiency Rating (EPC)

Current Rating E

Services

Interested parties are requested to make their own enquiries to the relevant authorities as to the availability of services.

Important Notice to Prospective Buyers:

We draw your attention to the Special Conditions of Sale within the Legal Pack, referring to other charges in addition to the purchase price which may become payable. Such costs may include Search Fees, reimbursement of Sellers costs and Legal Fees, and Transfer Fees amongst others.

Additional Fees

Administration Charge - Purchasers will be required to pay an administration fee of £1,500 inc VAT

Disbursements - Please see the legal pack for any disbursements listed that may become payable by the purchaser on completion.

View Larger Map

Disclaimer: The map preview provided above is for general guidance only and may not accurately reflect the exact location or surrounding buildings. Prospective buyers and interested parties are strongly advised to independently verify the precise location and surroundings before bidding.