For Sale By Auction | 09:30, 28 May 2025 | Lot 106

24 Corringham Road, Stanford-le-Hope, Essex, SS17 0AH

Sold £260,000

  • Mixed Use
  • Tenure: Freehold

Call the team on 020 7625 9007 for more information

Auction Date

Wed 28/05/2025

Auction Time

09:30

Auction Venue

Live Stream

Viewing Times:

Fri 16 May

12:00-12:30

Thu 22 May

12:00-12:30

Tue 27 May

12:00-12:30

A Mixed Use Detached Building Arranged to Provide a Vacant Ground Floor Shop and a First Floor Flat (Sold Off). Offered With Planning Permission to Convert the Rear of The Shop into Two Flats.

The property comprises a detached building over ground and first floors arranged to provide a vacant ground floor shop and a first floor flat (sold off). The ground floor shop requires a program of refurbishment.

Tenure

Freehold

Location

The property is situated on a mixed use road close to local shops and amenities. The open spaces of Stanford-le-Hope Recreation Ground are within easy reach. Transport links are provided by Stanford-le-Hope rail station.

Accommodation

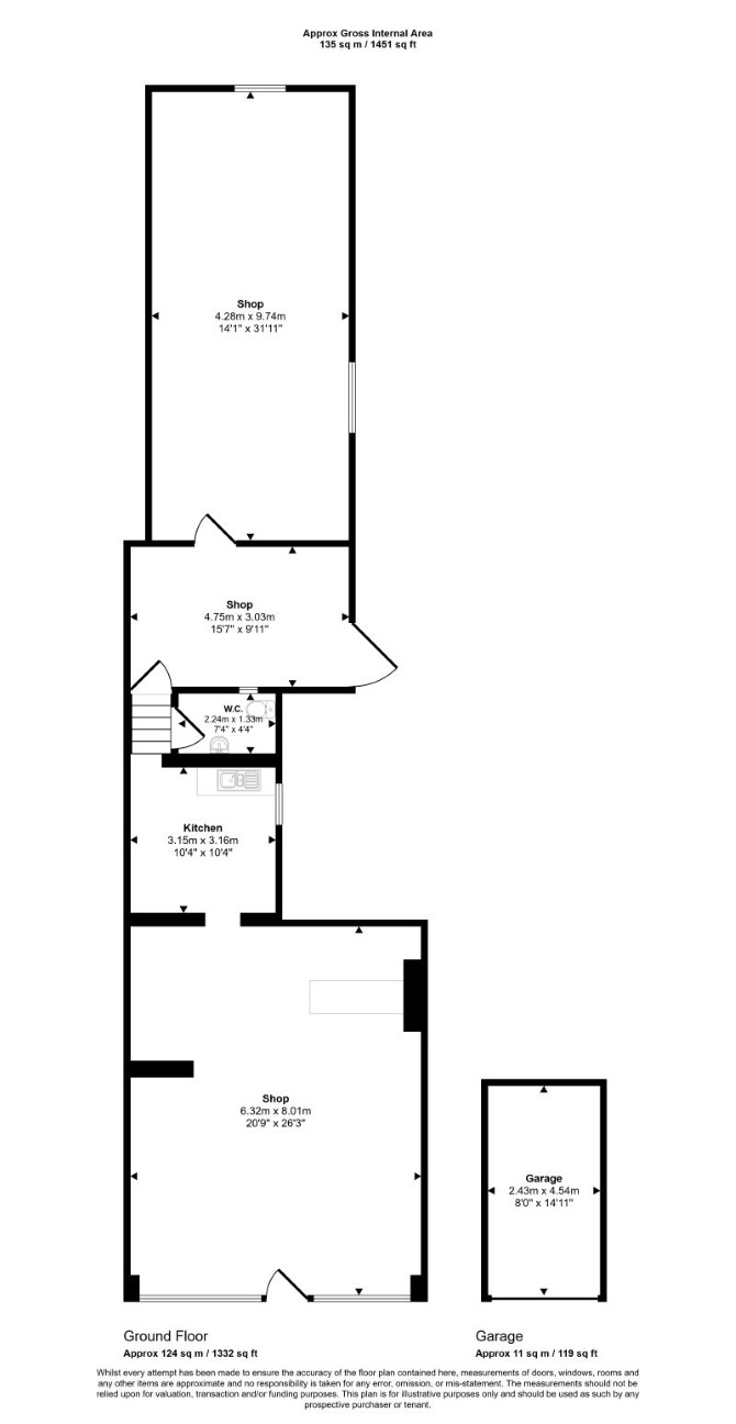
Ground Floor Three Rooms Kitchen Separate WC G.I.A Approximately 127 sq m (1,363 sq ft) Including the Rear Garden First Floor Flat (Sold Off)

Exterior

The property benefits from a rear garden and a garage.

Planning

Thurrock Borough Council granted the following planning permission (ref: 24/01257/PAOFFR) on 3rd February 2025 : 'Prior Approval under Town and Country Planning (General Permitted Development) Order 2015 (as amended) Schedule 2, Part 3, Class MA for the conversion of the rear of the commercial unit (Use class E) into 2x residential dwellings (Use Class C3) consisting of 1x studio flat and 1x 1bed flat)'.

Tenancy

The first floor flat has been sold off on a 125 year lease from 29th September 1988.

The seller has advised the current ground rent for 24a Corringham Road is £150 per annum.

Energy Efficiency Rating (EPC)

Current Rating C

Services

Interested parties are requested to make their own enquiries to the relevant authorities as to the availability of services.

Important Notice to Prospective Buyers:

We draw your attention to the Special Conditions of Sale within the Legal Pack, referring to other charges in addition to the purchase price which may become payable. Such costs may include Search Fees, reimbursement of Sellers costs and Legal Fees, and Transfer Fees amongst others.

Additional Fees

Administration Charge - Purchasers will be required to pay an administration fee of £1,500 inc VAT

Disbursements - Please see the legal pack for any disbursements listed that may become payable by the purchaser on completion.

View Larger Map

Disclaimer: The map preview provided above is for general guidance only and may not accurately reflect the exact location or surrounding buildings. Prospective buyers and interested parties are strongly advised to independently verify the precise location and surroundings before bidding.