For Sale By Auction | 09:30, 28 May 2025 | Lot 44

85 South End, Croydon, Surrey, CR0 1BG

Sold £400,000

  • Apartment
  • Tenure: Freehold

Call the team on 020 7625 9007 for more information

Auction Date

Wed 28/05/2025

Auction Time

09:30

Auction Venue

Live Stream

A Vacant Mid Terrace Commercial Building In Shell Condition. Potential for the Upper Floors to be Converted into Residential Use (Subject to Obtaining all Relevant Consents)

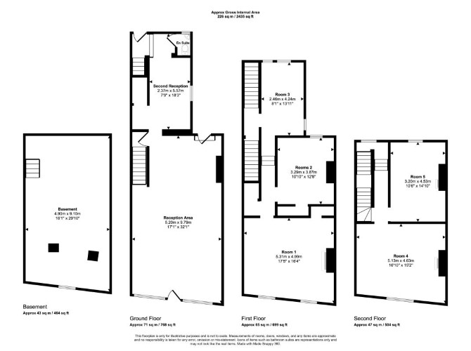
The property comprises a mid terrace commercial building in shell condition arranging over lower ground, ground and two upper floors.

Tenure

Freehold

Location

The property is situated on a mixed use road close to local shops and amenities. The open spaces of Park Hill Park are within easy reach. Transport links are provided by West Croydon overground station and Waddon rail station.

Accommodation

Lower Ground Floor Basement Area (Shell Condition) Ground Floor Two Reception Rooms (Shell Condition) W/C First Floor Three Rooms (Shell Condition) Second Floor Two Rooms (Shell Condition)

Exterior

The property benefits from a rear yard and vehicle access via Ledbury Place.

Planning

Croydon Borough Council granted the following planning permission (ref: 17/04715/FUL) on 14th November 2017 : ' Erection of 2-storey rear extension to form 2 x one bed flats and one studio flat; provision of associated parking, bin store & cycle store'. Planning has now lapsed.

Services

Interested parties are requested to make their own enquiries to the relevant authorities as to the availability of services.

Important Notice to Prospective Buyers:

We draw your attention to the Special Conditions of Sale within the Legal Pack, referring to other charges in addition to the purchase price which may become payable. Such costs may include Search Fees, reimbursement of Sellers costs and Legal Fees, and Transfer Fees amongst others.

Additional Fees

Administration Charge - Purchasers will be required to pay an administration fee of £1,500 inc VAT

Disbursements - Please see the legal pack for any disbursements listed that may become payable by the purchaser on completion.

View Larger Map

Disclaimer: The map preview provided above is for general guidance only and may not accurately reflect the exact location or surrounding buildings. Prospective buyers and interested parties are strongly advised to independently verify the precise location and surroundings before bidding.