Withdrawn | Lot 114

The Office Nightclub, 16A St Mary's Street, Truro, Cornwall, TR1 2AF

Withdrawn

  • Residential Development
  • Tenure: Freehold

Call the team on 020 7625 9007 for more information

Auction Date

Wed 28/05/2025

Auction Time

09:30

Auction Venue

Live Stream

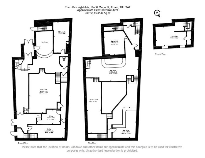
A Mid Terrace Building Arranged to Provide a Former Nightclub. Offered With Planning Permission to Convert into Four Split Level Flats.

The property comprises a mid terrace building arranged to provide a former nightclub arranging over ground and two upper floors.

Tenure

Freehold

Location

The property is situated in Truro city centre close to local shops and amenities. The open spaces of Victoria Gardens are within easy reach. Transport links are provided by Truro rail station.

Planning

Cornwall Borough Council granted the following planning permission (ref: PA23/00550) on 4th August 2023 : 'Conversion of the nightclub into 4 no. flats and associated development'.

Proposed Accommodation

Units 1, 2 & 3 Ground Floor Reception Room with Open-Plan Kitchen First Floor Two Bedrooms Bathroom Unit 4 Ground Floor Kitchen/Diner First Floor Reception Room Second Floor Bedroom Bathroom

Energy Efficiency Rating (EPC)

Current Rating D

Services

Interested parties are requested to make their own enquiries to the relevant authorities as to the availability of services.

Important Notice to Prospective Buyers:

We draw your attention to the Special Conditions of Sale within the Legal Pack, referring to other charges in addition to the purchase price which may become payable. Such costs may include Search Fees, reimbursement of Sellers costs and Legal Fees, and Transfer Fees amongst others.

Additional Fees

Administration Charge - Purchasers will be required to pay an administration fee of £1,800 inc VAT

Disbursements - Please see the legal pack for any disbursements listed that may become payable by the purchaser on completion.

View Larger Map

Disclaimer: The map preview provided above is for general guidance only and may not accurately reflect the exact location or surrounding buildings. Prospective buyers and interested parties are strongly advised to independently verify the precise location and surroundings before bidding.