For Sale By Auction | 09:30, 28 May 2025 | Lot 95A

15 Southill Road, Chatham, Kent, ME4 5SA

Sold £176,000

  • Terraced House
  • 3 Bedrooms
  • Tenure: Freehold

Call the team on 020 7625 9007 for more information

Auction Date

Wed 28/05/2025

Auction Time

09:30

Auction Venue

Live Stream

Viewing Times:

Fri 23 May

14:00-14:30

Tue 27 May

12:00-12:30

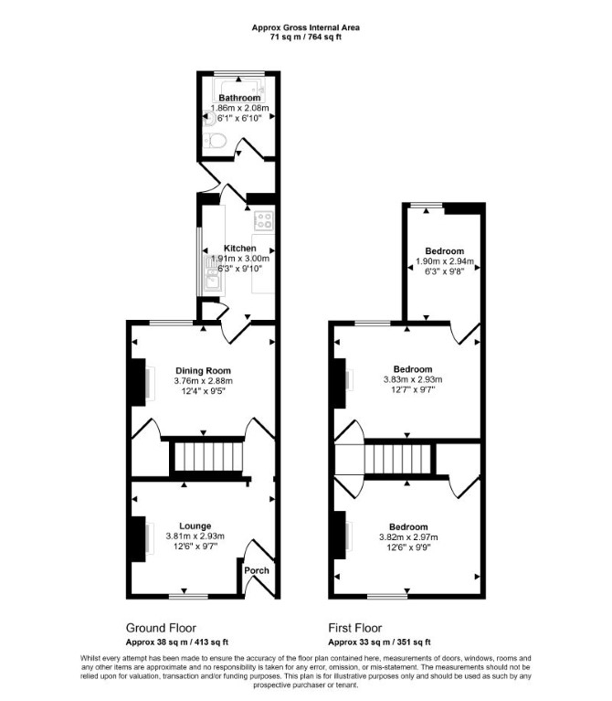
A Vacant Five Room Mid Terrace House

The property comprises a five room mid terrace house arranging over ground and first floors. Plans have been drawn up for the property to be converted into and HMO (subject to obtaining all relevant consents).

Tenure

Freehold

Location

The property is situated on a residential road close to local shops and amenities. The open spaces of Jackson's Field are within easy reach. Transport links are provided by Chatham rail station.

Accommodation

Ground Floor Two Reception Rooms Kitchen Bathroom First Floor Three Rooms

Exterior

The property benefits from a rear garden.

Energy Efficiency Rating (EPC)

Current Rating D

Services

Interested parties are requested to make their own enquiries to the relevant authorities as to the availability of services.

Important Notice to Prospective Buyers:

We draw your attention to the Special Conditions of Sale within the Legal Pack, referring to other charges in addition to the purchase price which may become payable. Such costs may include Search Fees, reimbursement of Sellers costs and Legal Fees, and Transfer Fees amongst others.

Additional Fees

Administration Charge - Purchasers will be required to pay an administration fee of £1,800 inc VAT

Disbursements - Please see the legal pack for any disbursements listed that may become payable by the purchaser on completion.

View Larger Map

Disclaimer: The map preview provided above is for general guidance only and may not accurately reflect the exact location or surrounding buildings. Prospective buyers and interested parties are strongly advised to independently verify the precise location and surroundings before bidding.