Sold Prior | Lot 122

Flat 60 Watermans Quay, William Morris Way, Fulham, London, SW6 2UU

Sold Prior

  • Flat
  • 2 Bedrooms
  • Tenure: Leasehold. The property is held on a 999 year lease from 25th December 1989 (thus approximately 964 years unexpired).

Call the team on 020 7625 9007 for more information

Auction Date

Wed 02/07/2025

Auction Time

09:30

Auction Venue

Live Stream

Viewing Times:

Fri 20 Jun

15:00-15:30

Tue 24 Jun

15:00-15:30

Thu 26 Jun

15:00-15:30

Mon 30 Jun

15:00-15:30

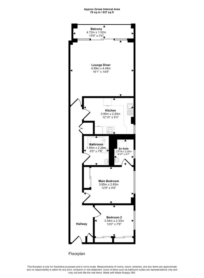
A Well Located Fourth Floor Two Bedroom Flat. Offered with Vacant Possession.

The property comprises a fourth floor two bedroom flat situated within a purpose built block arranged over ground and seven upper floors.

Tenure

Leasehold. The property is held on a 999 year lease from 25th December 1989 (thus approximately 964 years unexpired).

Location

The property is situated in the highly sought after area of Fulham close to local shops and amenities. The open spaces of Imperial Park are within easy reach. Transport links are provided by Earl's Court underground station (Piccadilly line) and Imperial Wharf rail station.

Accommodation

Fourth Floor Reception Room Kitchen Two Bedrooms (One with En-Suite) Bathroom

Exterior

The property benefits from a 24 hour porterage, a lift, off street parking a private balcony and a view of the River Thames.

Energy Efficiency Rating (EPC)

Current Rating B

Services

Interested parties are requested to make their own enquiries to the relevant authorities as to the availability of services.

Important Notice to Prospective Buyers:

We draw your attention to the Special Conditions of Sale within the Legal Pack, referring to other charges in addition to the purchase price which may become payable. Such costs may include Search Fees, reimbursement of Sellers costs and Legal Fees, and Transfer Fees amongst others.

Additional Fees

Administration Charge - Purchasers will be required to pay an administration fee of £1,800 inc VAT

Disbursements - Please see the legal pack for any disbursements listed that may become payable by the purchaser on completion.

View Larger Map

Disclaimer: The map preview provided above is for general guidance only and may not accurately reflect the exact location or surrounding buildings. Prospective buyers and interested parties are strongly advised to independently verify the precise location and surroundings before bidding.