For Sale By Auction | 09:30, 02 July 2025 | Lot 79

54 Greenfield Gardens, Cricklewood, London, NW2 1HY

*Guide | £1,350,000+ (plus fees)

  • Detached House
  • 7 Bedrooms
  • Tenure: Freehold

Call the team on 020 7625 9007 for more information

Auction Date

Wed 02/07/2025

Auction Time

09:30

Auction Venue

Live Stream

Viewing Times:

Tue 24 Jun

14:30-15:00

Thu 26 Jun

14:30-15:00

Sat 28 Jun

16:30-17:00

Mon 30 Jun

14:30-15:00

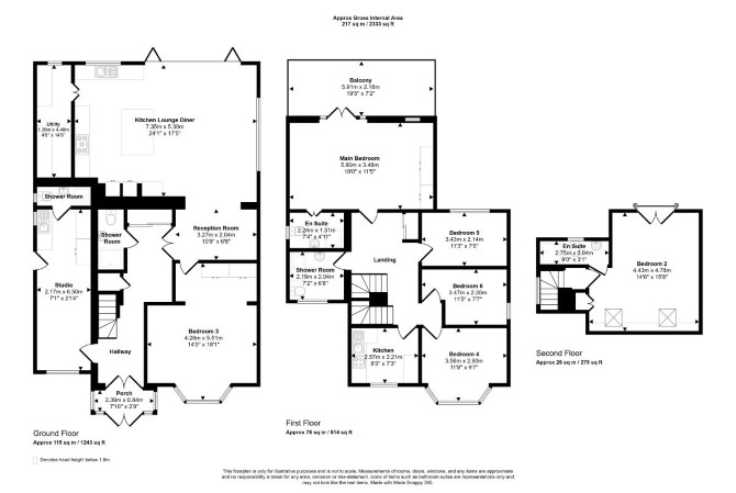
A Substantial Seven Bedroom Detached House Offered with Vacant Possession

The property comprises an impressive seven bedroom detached house arranged over ground and two upper floors.

Tenure

Freehold

10 Week Completion Available

Location

The property is situated on a residential road close to local shops and amenities. The open spaces of Golders Hill Park are within easy reach. Transport links are provided by Brent Cross underground station (Northern line) and Brondesbury overground station.

Accommodation

Ground Floor Open Plan Reception Room/Kitchen Utility Room Two Bedrooms (One with a Kitchen and En-Suite) Bathroom First Floor Four Bedrooms (One with an En-Suite) Bathroom Kitchen Second Floor Bedroom Bathroom

Exterior

The property benefits from a balcony on the first floor, a large rear garden and separate outbuilding.

Energy Efficiency Rating (EPC)

Current Rating C

Services

Interested parties are requested to make their own enquiries to the relevant authorities as to the availability of services.

Important Notice to Prospective Buyers:

We draw your attention to the Special Conditions of Sale within the Legal Pack, referring to other charges in addition to the purchase price which may become payable. Such costs may include Search Fees, reimbursement of Sellers costs and Legal Fees, and Transfer Fees amongst others.

Additional Fees

Administration Charge - Purchasers will be required to pay an administration fee of £1,500 inc VAT

Disbursements - Please see the legal pack for any disbursements listed that may become payable by the purchaser on completion.

View Larger Map

Disclaimer: The map preview provided above is for general guidance only and may not accurately reflect the exact location or surrounding buildings. Prospective buyers and interested parties are strongly advised to independently verify the precise location and surroundings before bidding.