Withdrawn | Lot 178

50-52 Calverley Road, Royal Tunbridge Wells, Kent, TN1 2TD

Withdrawn

  • Block of Apartments
  • Tenure: Freehold

Call the team on 020 7625 9007 for more information

Auction Date

Thu 03/07/2025

Auction Time

10:00

Auction Venue

Live Stream

Viewing Times:

Thu 19 Jun

12:00-12:30

Mon 23 Jun

12:00-12:30

Fri 27 Jun

12:00-12:30

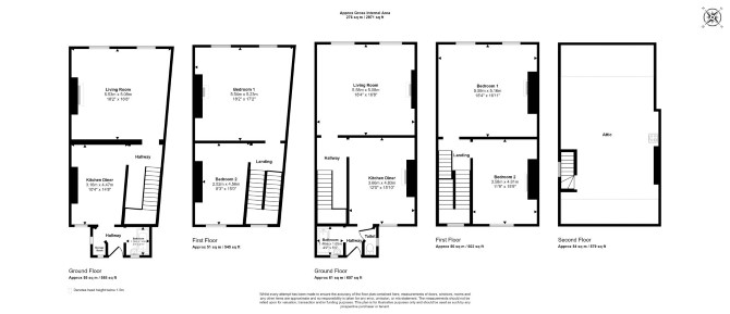
A Redevelopment Opportunity Comprising a Substantial Mid Terrace Building with a Ground Floor Retail Unit (Sold Off on a Long Lease) and Planning Permission to Covert the Upper Floors (Currently Arranged as 2 Self-Contained Flats) to Provide Four Flats (2 x One Bedroom, 2 x Two Bedrooms).

Tenure

Freehold

Location

The property is situated on a pedestrianised road close to local shops and amenities. The open spaces of Calverley Grounds are within easy reach. Transport links are provided by Tunbridge Wells rail station.

Planning

Tunbridge Wells Borough Council granted the following planning permission (ref: 23/01121/FULL) on 20th June 2023: 'Conversion of first, second and third floor to create 2no. additional residential units, new dormer and rooflights, rear extension, creation of amenity spaces and bin/bike store to rear'.

Proposed Accommodation

Ground Floor Retail Unit (Sold-Off) First Floor Flat 1 One Bedroom Flat (G.I.A 49 sq m) Flat 2 One Bedroom Flat (G.I.A 44 sq m) Second and Third Floor Flat 3 Two Bedroom Flat (G.I.A 91 sq m) Flat 4 Two Bedroom Flat (G.I.A 85 sq m)

The ground floor retail unit is sold off on a 999 year lease.

Further Information

The ground floor retail unit is being offered as a separate lot on July 2nd.

VAT

VAT is not applicable

Services

Interested parties are requested to make their own enquiries to the relevant authorities as to the availability of services.

Important Notice to Prospective Buyers:

We draw your attention to the Special Conditions of Sale within the Legal Pack, referring to other charges in addition to the purchase price which may become payable. Such costs may include Search Fees, reimbursement of Sellers costs and Legal Fees, and Transfer Fees amongst others.

Additional Fees

Administration Charge - Purchasers will be required to pay an administration fee of £1,500 inc VAT

Disbursements - Please see the legal pack for any disbursements listed that may become payable by the purchaser on completion.

View Larger Map

Disclaimer: The map preview provided above is for general guidance only and may not accurately reflect the exact location or surrounding buildings. Prospective buyers and interested parties are strongly advised to independently verify the precise location and surroundings before bidding.