For Sale By Auction | 10:00, 03 July 2025 | Lot 188

14-16 Barnsley Road, Barnsley, South Yorkshire, S73 8DD

*Guide | £260,000+ (plus fees)

  • Terraced House
  • 10 Bedrooms
  • Tenure: Freehold

Call the team on 020 7625 9007 for more information

Auction Date

Thu 03/07/2025

Auction Time

10:00

Auction Venue

Live Stream

Viewing Times:

Wed 25 Jun

11:00-11:30

A Ten Bedroom HMO Part Let Producing a Combined Income of £55,700 Per Annum (Reflecting a 21.4% Yield On Guide).

The property comprises two mid terraced buildings arranged as a ten bedroom fully licensed HMO arranged over ground and first floors.

Tenure

Freehold

Location

The property is situated on a residential road close to local shops and amenities. The open spaces of Netherwood Country Park are within easy reach. Transport links are provided by Wombwell rail station.

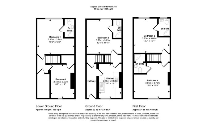
Accommodation

14 Barnsley Road Ground Floor 3 x Letting Rooms (Each with En-Suite Bathroom) First Floor 2 x Letting Rooms (Each with En-Suite Bathroom) 16 Barnsley Road Ground Floor Letting Room with En-Suite Bathroom First Floor 4 x Letting Rooms (Each with En-Suite Bathroom)

Current Rent Reserved

Current Rent Reserved £55,700 per annum

Services

Interested parties are requested to make their own enquiries to the relevant authorities as to the availability of services.

Important Notice to Prospective Buyers:

We draw your attention to the Special Conditions of Sale within the Legal Pack, referring to other charges in addition to the purchase price which may become payable. Such costs may include Search Fees, reimbursement of Sellers costs and Legal Fees, and Transfer Fees amongst others.

Additional Fees

Administration Charge - Purchasers will be required to pay an administration fee of £1,800 inc VAT

Disbursements - Please see the legal pack for any disbursements listed that may become payable by the purchaser on completion.

View Larger Map

Disclaimer: The map preview provided above is for general guidance only and may not accurately reflect the exact location or surrounding buildings. Prospective buyers and interested parties are strongly advised to independently verify the precise location and surroundings before bidding.