For Sale By Auction | 09:30, 02 July 2025 | Lot 50A

137 Stafford Road, Wallington, Surrey, SM6 9BN

*Guide | £350,000+ (plus fees)

  • Mixed Use
  • 2 Bedrooms
  • Tenure: Freehold

Call the team on 020 7625 9007 for more information

Auction Date

Wed 02/07/2025

Auction Time

09:30

Auction Venue

Live Stream

Viewing Times:

Wed 18 Jun

15:30-16:00

Fri 20 Jun

15:30-16:00

Tue 24 Jun

15:30-16:00

Thu 26 Jun

15:30-16:00

Sat 28 Jun

11:00-11:30

Mon 30 Jun

15:30-16:00

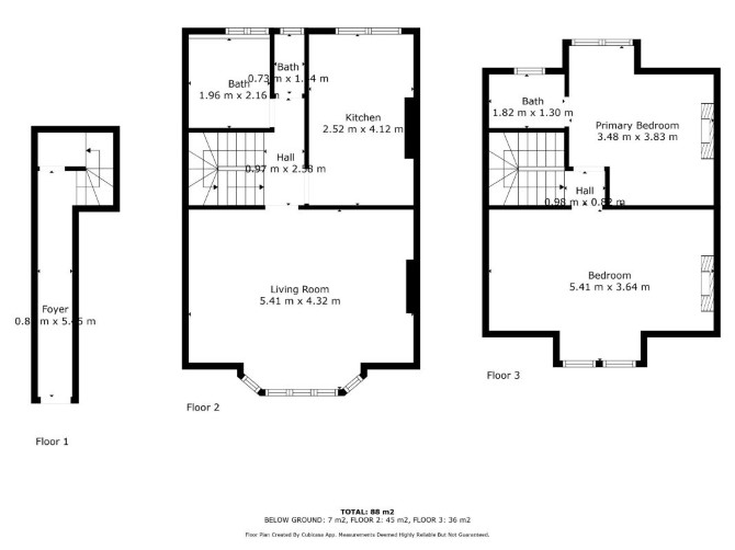
A Mid Terrace Building Arranged to Provide a Ground Floor Commercial Unit and a First and Second Floor Two Bedroom Split Level Flat. Part Let Producing £7,000 Per Annum.

The property comprises a mid terrace building arranged to provide a ground floor commercial unit and a first and second floor two bedroom split level flat. Plans have been drawn up for a rear extension to create a two bedroom flat. No planning application has been submitted for this scheme. Drawings of the proposed plans are available for inspection upon request. Auction House London make no representations or warranties with regard to this scheme and/or the validity of the aforementioned plans. Buyers must rely on their own enquiries with regard to any development potential, permissions required and any previous planning history in respect of this site.

Tenure

Freehold

Location

The property is situated on a mixed use road close to local shops and amenities. The open spaces of Mellows Park are within easy reach. Transport links are provided by Wallington rail station.

Accommodation

Ground Floor Commercial Unit First Floor Reception Room Kitchen Bathroom WC Second Floor Two Bedrooms Bathroom

Tenancy

The commercial unit is subject to a lease expiring in 2030 at a rent of £7,000 per annum.

EPC Ratings

Shop - E Flat - D

Services

Interested parties are requested to make their own enquiries to the relevant authorities as to the availability of services.

Important Notice to Prospective Buyers:

We draw your attention to the Special Conditions of Sale within the Legal Pack, referring to other charges in addition to the purchase price which may become payable. Such costs may include Search Fees, reimbursement of Sellers costs and Legal Fees, and Transfer Fees amongst others.

Additional Fees

Administration Charge - Purchasers will be required to pay an administration fee of £1,800 inc VAT

Disbursements - Please see the legal pack for any disbursements listed that may become payable by the purchaser on completion.

View Larger Map

Disclaimer: The map preview provided above is for general guidance only and may not accurately reflect the exact location or surrounding buildings. Prospective buyers and interested parties are strongly advised to independently verify the precise location and surroundings before bidding.