For Sale By Auction | 09:30, 02 July 2025 | Lot 61

180 Springfield Road, Wigan, Lancashire, WN6 7RH

Sold £130,000

  • Semi-Detached House
  • 2 Bedrooms
  • Tenure: Long Leasehold. The property is held on a 999 year lease from 28 January 1949 (thus approximately 923 years unexpired).

Call the team on 020 7625 9007 for more information

Auction Date

Wed 02/07/2025

Auction Time

09:30

Auction Venue

Live Stream

Viewing Times:

Thu 19 Jun

13:00-13:30

Sat 21 Jun

11:00-11:30

Wed 25 Jun

11:00-11:30

Mon 30 Jun

11:00-11:30

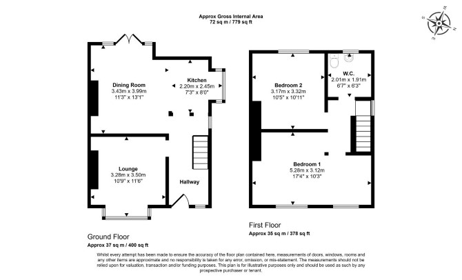
A Vacant Two Bedroom Semi Detached House. Potential for a Loft and Rear Extension (Subject to Obtaining all Relevant Consents)

The property comprises a two bedroom semi detached house arranged over ground and first floors. The property requires a program of refurbishment.

Tenure

Long Leasehold. The property is held on a 999 year lease from 28 January 1949 (thus approximately 923 years unexpired).

Location

The property is situated on a residential road close to local shops and amenities. The open spaces of Mesnes Park are within easy reach. Transport links are provided by Wigan North Western rail station.

Accommodation

Ground Floor Two Reception Rooms Kitchen (removed) Utility Room First Floor Two Bedrooms Separate WC

Exterior

The property benefits from both front and rear gardens and a garage.

Energy Efficiency Rating (EPC)

Current Rating G

Services

Interested parties are requested to make their own enquiries to the relevant authorities as to the availability of services.

Important Notice to Prospective Buyers:

We draw your attention to the Special Conditions of Sale within the Legal Pack, referring to other charges in addition to the purchase price which may become payable. Such costs may include Search Fees, reimbursement of Sellers costs and Legal Fees, and Transfer Fees amongst others.

Additional Fees

Administration Charge - Purchasers will be required to pay an administration fee of £1,800 inc VAT

Disbursements - Please see the legal pack for any disbursements listed that may become payable by the purchaser on completion.

View Larger Map

Disclaimer: The map preview provided above is for general guidance only and may not accurately reflect the exact location or surrounding buildings. Prospective buyers and interested parties are strongly advised to independently verify the precise location and surroundings before bidding.