Sold Prior | Lot 233

42A West Street, Portchester, Fareham, Hampshire, PO16 9UN

Sold Prior

  • Flat
  • 3 Bedrooms
  • Tenure: Leasehold. The property is held on a new 150 year lease.

Call the team on 020 7625 9007 for more information

Auction Date

Thu 03/07/2025

Auction Time

10:00

Auction Venue

Live Stream

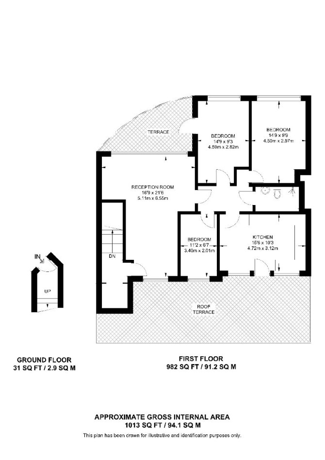
A First Floor Three Bedroom Flat Subject to an Assured Shorthold Tenancy Producing £12,600 Per Annum

The property comprises a first floor three bedroom flat situated within a mixed use parade arranging over ground and first floors.

Tenure

Leasehold. The property is held on a new 150 year lease.

Location

The property is situated on a residential road close to local shops and amenities. The open spaces of Castle Shore Park are within easy reach. Transport links are provided by Porchester rail station.

Accommodation

First Floor Reception Room Kitchen Three Bedrooms Study Room Bathroom

Exterior

The property benefits from a private balcony and roof terrace.

Tenancy

The property is subject to an Assured Shorthold Tenancy at a rent of £12,600 per annum.

Energy Efficiency Rating (EPC)

Current Rating E

Services

Interested parties are requested to make their own enquiries to the relevant authorities as to the availability of services.

Important Notice to Prospective Buyers:

We draw your attention to the Special Conditions of Sale within the Legal Pack, referring to other charges in addition to the purchase price which may become payable. Such costs may include Search Fees, reimbursement of Sellers costs and Legal Fees, and Transfer Fees amongst others.

Additional Fees

Administration Charge - Purchasers will be required to pay an administration fee of £1,500 inc VAT

Disbursements - Please see the legal pack for any disbursements listed that may become payable by the purchaser on completion.

View Larger Map

Disclaimer: The map preview provided above is for general guidance only and may not accurately reflect the exact location or surrounding buildings. Prospective buyers and interested parties are strongly advised to independently verify the precise location and surroundings before bidding.