For Sale By Auction | 09:30, 02 July 2025 | Lot 57A

63 Hendon Way, Cricklewood, London, NW2 2LX

Sold £750,000

  • Block of Apartments
  • 4 Bedrooms
  • Tenure: Freehold

Call the team on 020 7625 9007 for more information

Auction Date

Wed 02/07/2025

Auction Time

09:30

Auction Venue

Live Stream

Viewing Times:

Tue 24 Jun

12:00-12:30

Thu 26 Jun

15:00-15:30

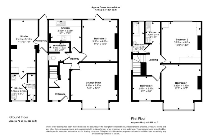
A Semi Detached Building Arranged to Provide Three Flats (1 x Studio, 1 x One Bedroom, 1 x Two Bedroom). Offered with Vacant Possession

The property comprises a semi detached building arranged to provide three flats (1 x studio, 1 one bedroom, 1 x two bedroom).

Tenure

Freehold

Location

The property is situated on a residential road close to local shops and amenities. The open spaces of Clitterhouse Playing Fields are within easy reach. Transport links are provided by Willesden Green underground station (Jubilee line) and Cricklewood rail station.

Accommodation

Ground Floor Flat 1 Studio Room Kitchen Bathroom Flat 2 Reception Room Kitchen Bedroom Bathroom First Floor Flat 3 Kitchen Three Rooms Bathroom

Exterior

The property benefits from both front and rear gardens.

Services

Interested parties are requested to make their own enquiries to the relevant authorities as to the availability of services.

Important Notice to Prospective Buyers:

We draw your attention to the Special Conditions of Sale within the Legal Pack, referring to other charges in addition to the purchase price which may become payable. Such costs may include Search Fees, reimbursement of Sellers costs and Legal Fees, and Transfer Fees amongst others.

Additional Fees

Administration Charge - Purchasers will be required to pay an administration fee of £1,800 inc VAT

Disbursements - Please see the legal pack for any disbursements listed that may become payable by the purchaser on completion.

View Larger Map

Disclaimer: The map preview provided above is for general guidance only and may not accurately reflect the exact location or surrounding buildings. Prospective buyers and interested parties are strongly advised to independently verify the precise location and surroundings before bidding.