For Sale By Auction | 10:00, 13 November 2025 | Lot 156

16 Newport Street, Oldham, Lancashire, OL8 4AJ

Sold £206,000

  • Terraced House
  • 3 Bedrooms
  • Tenure: Long Leasehold. The property is held on a 995 year lease from 10th June 1899 (thus approximately 869 years unexpired).

Call the team on 020 7625 9007 for more information

Auction Date

Thu 13/11/2025

Auction Time

10:00

Auction Venue

Live Stream

Viewing Times:

Thu 30 Oct

12:00-12:30

Thu 6 Nov

12:00-12:30

Sun 9 Nov

12:00-12:30

Tue 11 Nov

12:00-12:30

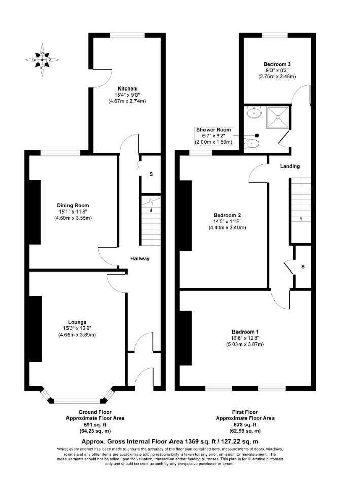
A Vacant Five Room Mid Terrace House

The property comprises a five room mid terrace house arranged over ground and first floors. The property requires a program of refurbishment.

Tenure

Long Leasehold. The property is held on a 995 year lease from 10th June 1899 (thus approximately 869 years unexpired).

By Order of the Executors

Location

The property is situated on a residential road close to local shops and amenities. The open spaces of Werneth Park are within easy reach. Transport links are provided by Moston rail station.

Accommodation

Ground Floor Two Rooms Kitchen First Floor Three Rooms Bathroom

Exterior

The property benefits from both front and rear gardens and a garage.

Services

Interested parties are requested to make their own enquiries to the relevant authorities as to the availability of services.

Important Notice to Prospective Buyers:

We draw your attention to the Special Conditions of Sale within the Legal Pack, referring to other charges in addition to the purchase price which may become payable. Such costs may include Search Fees, reimbursement of Sellers costs and Legal Fees, and Transfer Fees amongst others.

Additional Fees

Administration Charge - Purchasers will be required to pay an administration fee of £1,500 inc VAT

Disbursements - Please see the legal pack for any disbursements listed that may become payable by the purchaser on completion.

View Larger Map

Disclaimer: The map preview provided above is for general guidance only and may not accurately reflect the exact location or surrounding buildings. Prospective buyers and interested parties are strongly advised to independently verify the precise location and surroundings before bidding.