For Sale By Auction | 09:30, 12 November 2025 | Lot 119

56 Phoenix Place, Dartford, Kent, DA1 2XA

Sold £105,000

  • Flat
  • 2 Bedrooms
  • Tenure: Leasehold. The property is held on a 99 year lease from 9th April 1973 (thus approximately 46 years unexpired).

Call the team on 020 7625 9007 for more information

Auction Date

Wed 12/11/2025

Auction Time

09:30

Auction Venue

Live Stream

Viewing Times:

Fri 31 Oct

16:30-17:00

Tue 4 Nov

16:30-17:00

Thu 6 Nov

16:30-17:00

Sat 8 Nov

12:00-12:30

Mon 10 Nov

16:30-17:00

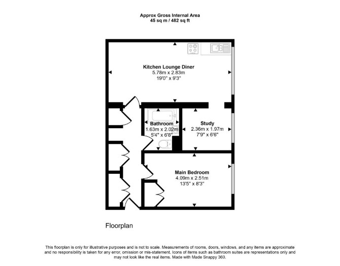
A Vacant Fourth Floor Two Bedroom Flat

The property comprises a fourth floor two bedroom flat situated within a purpose built block arranged over ground and five upper floors. The property requires a program of refurbishment and repairs.

Tenure

Leasehold. The property is held on a 99 year lease from 9th April 1973 (thus approximately 46 years unexpired).

Location

The property is situated on a residential road close to local shops and amenities. The open spaces of Central Park are within easy reach. Transport links are provided by Dartford rail station.

Accommodation

Fourth Floor Reception Room/Kitchen Two Bedrooms Bathroom

Further Information

When purchasing a flat that has a short lease, it is important to understand that in addition to the purchase price, if you wish to extend the lease to 90+ years, you will need to pay a premium to the freeholder. This is done by way of serving a Section 42 notice to the freeholder requesting a lease extension with a suggested price for the extension. The freeholder has the right to refuse the offer and submit a counter notice with their suggested price. If you do not fully understand this process, please ask the auctioneers or a solicitor.

Energy Efficiency Rating (EPC)

Current Rating C

Services

Interested parties are requested to make their own enquiries to the relevant authorities as to the availability of services.

Important Notice to Prospective Buyers:

We draw your attention to the Special Conditions of Sale within the Legal Pack, referring to other charges in addition to the purchase price which may become payable. Such costs may include Search Fees, reimbursement of Sellers costs and Legal Fees, and Transfer Fees amongst others.

Additional Fees

Administration Charge - Purchasers will be required to pay an administration fee of £1,500 inc VAT

Disbursements - Please see the legal pack for any disbursements listed that may become payable by the purchaser on completion.

View Larger Map

Disclaimer: The map preview provided above is for general guidance only and may not accurately reflect the exact location or surrounding buildings. Prospective buyers and interested parties are strongly advised to independently verify the precise location and surroundings before bidding.