Withdrawn | Lot 127

24 Lowerhouse Lane, Burnley, Lancashire, BB12 6HU

Withdrawn

  • Terraced House
  • 2 Bedrooms
  • Tenure: Leasehold. The property is held on a 999 year lease from 1st November 1896 (thus approximately 870 years unexpired).

Call the team on 020 7625 9007 for more information

Auction Date

Wed 12/11/2025

Auction Time

09:30

Auction Venue

Live Stream

A Two Bedroom Mid Terrace House Subject to an Assured Shorthold Tenancy Producing £7,140 Per Annum

The property comprises a two bedroom mid terrace house arranged over ground and first floors.

Tenure

Leasehold. The property is held on a 999 year lease from 1st November 1896 (thus approximately 870 years unexpired).

Location

The property is situated on a residential road close to local shops and amenities. The open spaces of Sycamore Park are within easy reach. Transport links are provided by Rose Grove rail station.

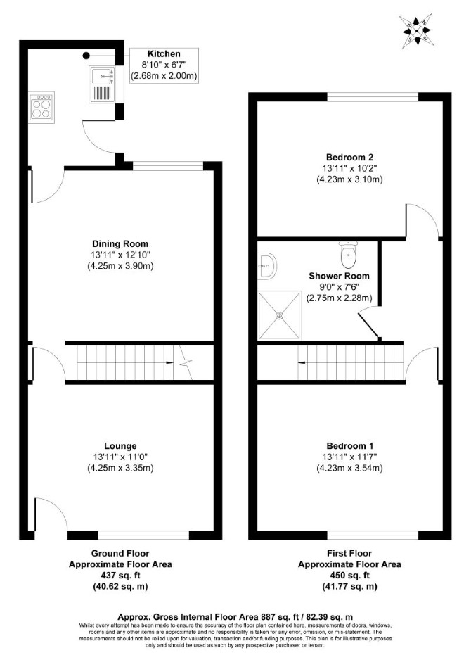
Accommodation

Ground Floor Reception Room Kitchen First Floor Two Bedrooms Bathroom

Exterior

The property benefits from a rear garden.

Tenancy

The property is subject to an Assured Shorthold Tenancy for a term of 12 months commencing 22nd May 2023 at a rent of £595 per calendar month (holding over).

Energy Efficiency Rating (EPC)

Current Rating D

Services

Interested parties are requested to make their own enquiries to the relevant authorities as to the availability of services.

Important Notice to Prospective Buyers:

We draw your attention to the Special Conditions of Sale within the Legal Pack, referring to other charges in addition to the purchase price which may become payable. Such costs may include Search Fees, reimbursement of Sellers costs and Legal Fees, and Transfer Fees amongst others.

Additional Fees

Administration Charge - Purchasers will be required to pay an administration fee of £1,500 inc VAT

Disbursements - Please see the legal pack for any disbursements listed that may become payable by the purchaser on completion.

View Larger Map

Disclaimer: The map preview provided above is for general guidance only and may not accurately reflect the exact location or surrounding buildings. Prospective buyers and interested parties are strongly advised to independently verify the precise location and surroundings before bidding.