For Sale By Auction | 09:30, 12 November 2025 | Lot 41

1 Townsend Cooks Hill, Clutton, Bristol, Avon, BS39 5RD

Sold £340,000

  • Semi-Detached House
  • 4 Bedrooms
  • Tenure: Freehold

Call the team on 020 7625 9007 for more information

Auction Date

Wed 12/11/2025

Auction Time

09:30

Auction Venue

Live Stream

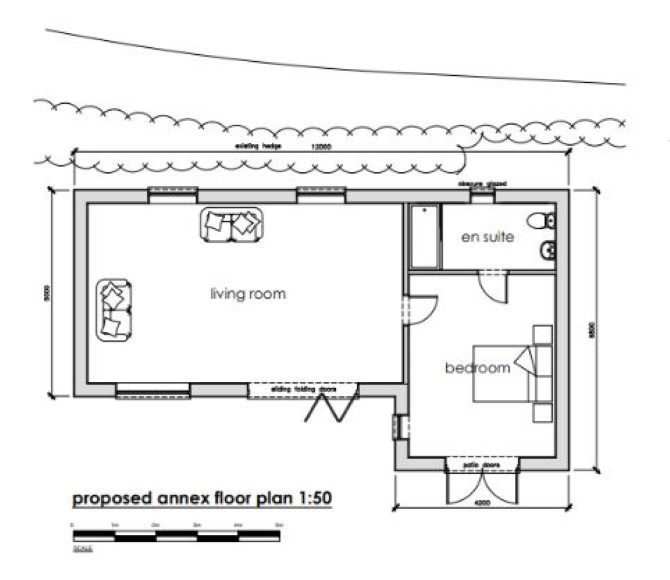
A Vacant Four Bedroom Semi Detached House Offered With Planning Permission for the Erection of Single Storey Detached Annex

The property comprises a four bedroom semi detached house arranged over ground and first floors.

Tenure

Freehold

Location

The property is situated on a residential road close to local shops and amenities. The open spaces of Gores Park are within easy reach. Transport links are provided by the A37.

Accommodation

Ground Floor Reception Room Kitchen/Diner Utility Room WC First Floor Four Bedrooms (One with En-Suite) Bathroom

Exterior

The property benefits from a garage, both front and rear gardens and off street parking.

Planning

Bath & North East Somerset Borough Council granted the following planning permission (ref: 24/03041/FUL) on 12th August 2024 : 'Erection of one storey, detached annex'.

Energy Efficiency Rating (EPC)

Current Rating F

Services

Interested parties are requested to make their own enquiries to the relevant authorities as to the availability of services.

Important Notice to Prospective Buyers:

We draw your attention to the Special Conditions of Sale within the Legal Pack, referring to other charges in addition to the purchase price which may become payable. Such costs may include Search Fees, reimbursement of Sellers costs and Legal Fees, and Transfer Fees amongst others.

Additional Fees

Administration Charge - Purchasers will be required to pay an administration fee of £1,500 inc VAT

Disbursements - Please see the legal pack for any disbursements listed that may become payable by the purchaser on completion.

View Larger Map

Disclaimer: The map preview provided above is for general guidance only and may not accurately reflect the exact location or surrounding buildings. Prospective buyers and interested parties are strongly advised to independently verify the precise location and surroundings before bidding.