For Sale By Auction | 09:30, 10 December 2025 | Lot 102

6 Bridge Street, Hemel Hempstead, Hertfordshire, HP1 1EF

*Guide | £70,000 - £110,000 (plus fees)

  • Flat
  • 3 Bedrooms
  • Tenure: Leasehold. The property is held on a 125 year lease from 4th July 1986 (thus approximately 85 years unexpired).

Call the team on 020 7625 9007 for more information

Auction Date

Wed 10/12/2025

Auction Time

09:30

Auction Venue

Live Stream

Viewing Times:

Tue 2 Dec

12:00-12:30

Thu 4 Dec

12:00-12:30

Sat 6 Dec

12:00-12:30

Tue 9 Dec

12:00-12:30

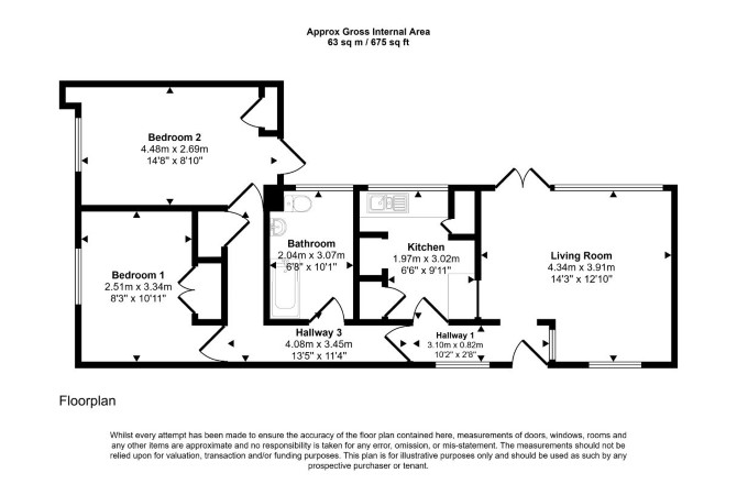
A Vacant Third Floor Three Bedroom Flat

The property comprises a third floor three bedroom flat situated within a corner building arranged over ground and three upper floors. The property requires a program of refurbishment and repairs.

Tenure

Leasehold. The property is held on a 125 year lease from 4th July 1986 (thus approximately 85 years unexpired).

Location

The property is situated on a residential road close to local shops and amenities. The open spaces of Keens Field are within easy reach. Transport links are provided by Hemel Hempstead rail station.

Accommodation

Third Floor Reception Room/Kitchen Three Bedrooms Bathroom

Exterior

The property benefits from a private balcony.

Approximate G.I.A; 700 Sq Ft

Energy Efficiency Rating (EPC)

Current Rating D

Services

Interested parties are requested to make their own enquiries to the relevant authorities as to the availability of services.

Important Notice to Prospective Buyers:

We draw your attention to the Special Conditions of Sale within the Legal Pack, referring to other charges in addition to the purchase price which may become payable. Such costs may include Search Fees, reimbursement of Sellers costs and Legal Fees, and Transfer Fees amongst others.

Additional Fees

Administration Charge - Purchasers will be required to pay an administration fee of £1,800 inc VAT

Disbursements - Please see the legal pack for any disbursements listed that may become payable by the purchaser on completion.

View Larger Map

Disclaimer: The map preview provided above is for general guidance only and may not accurately reflect the exact location or surrounding buildings. Prospective buyers and interested parties are strongly advised to independently verify the precise location and surroundings before bidding.