For Sale By Auction | 09:30, 10 December 2025 | Lot 18

25B Robin Court, Carew Road, Wallington, Surrey, SM6 8TH

*Guide | £295,000+ (plus fees)

  • Semi-Detached House
  • 4 Bedrooms
  • Tenure: Freehold

Call the team on 020 7625 9007 for more information

Auction Date

Wed 10/12/2025

Auction Time

09:30

Auction Venue

Live Stream

Viewing Times:

Wed 26 Nov

10:00-10:30

Fri 28 Nov

10:00-10:30

Tue 2 Dec

10:00-10:30

Thu 4 Dec

10:00-10:30

Mon 8 Dec

10:00-10:30

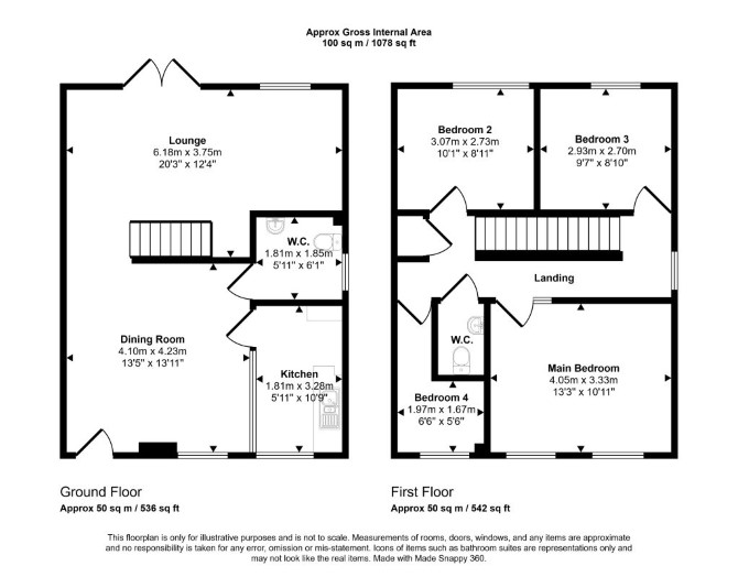
A Vacant Five Room Semi Detached Building

The property comprises a five room semi detached building arranged over ground and first floors. The property requires a program of refurbishment and repairs.

Tenure

Freehold

Location

The property is situated on a residential road close to local shops and amenities. The open spaces of Mellows Park are within easy reach. Transport links are provided by Carshalton rail station.

Accommodation

Ground Floor Through Reception Room Kitchen WC First Floor Four Rooms WC

Exterior

The property benefits from a rear garden.

Buyers should rely on their own enquires with regards to the current use class of the property.

Services

Interested parties are requested to make their own enquiries to the relevant authorities as to the availability of services.

Important Notice to Prospective Buyers:

We draw your attention to the Special Conditions of Sale within the Legal Pack, referring to other charges in addition to the purchase price which may become payable. Such costs may include Search Fees, reimbursement of Sellers costs and Legal Fees, and Transfer Fees amongst others.

Additional Fees

Administration Charge - Purchasers will be required to pay an administration fee of £1,500 inc VAT

Disbursements - Please see the legal pack for any disbursements listed that may become payable by the purchaser on completion.

View Larger Map

Disclaimer: The map preview provided above is for general guidance only and may not accurately reflect the exact location or surrounding buildings. Prospective buyers and interested parties are strongly advised to independently verify the precise location and surroundings before bidding.