For Sale By Auction | 09:30, 10 December 2025 | Lot 19

30 Wyvern Road, Purley, Surrey, CR8 2NP

*Guide | £635,000+ (plus fees)

  • Detached House
  • 6 Bedrooms
  • Tenure: Freehold

Call the team on 020 7625 9007 for more information

Auction Date

Wed 10/12/2025

Auction Time

09:30

Auction Venue

Live Stream

Viewing Times:

Fri 28 Nov

10:45-11:15

Tue 2 Dec

10:45-11:15

Mon 8 Dec

10:45-11:15

A Six Bedroom Detached House Fully Let Producing £49,488 Per Annum. Offered With Planning Permission to Extend and Convert the Property into Two Houses. (9.9% Yield on the Guide Price).

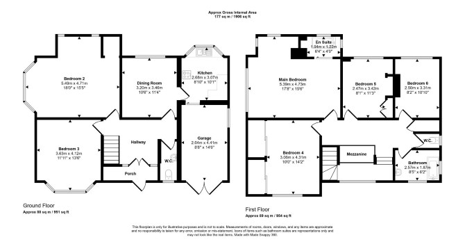
The property comprises a six bedroom detached house arranged over ground and first floors.

Tenure

Freehold

8 Week Completion Available

Location

The property is situated on a residential road close to local shops and amenities. The open spaces of Roundshaw Park are within easy reach. Transport links are provided by Purley rail station.

Accommodation

Ground Floor Two Letting Rooms Diner Kitchen WC First Floor Four Letting Rooms (One with En-Suite) Bathroom Separate WC

Exterior

The property benefits from a garage, a rear garden and off street parking.

Planning

Croydon Borough Council granted the following planning permission (ref: 24/03393/FUL) on 12th September 2025 : ' Erection of single storey rear extension and rear dormer loft extension to facilitate the conversion of the existing dwellinghouse into 2 self-contained homes, with sub-division of rear garden, associated landscaping and provision of car parking, cycle and refuse storage.

Proposed Accommodation

House 1 Ground Floor Through Reception Room Kitchen Study Room WC First Floor Three Bedrooms (One with En-Suite) Bathroom House 2 Ground Floor Through Reception Room Kitchen Study Room WC First Floor Three Bedrooms (One with En-Suite) Bathroom

Tenancy

The property is subject to individual tenancies producing a combined rent of £4,124 per calendar month.

Energy Efficiency Rating (EPC)

Current Rating E

Services

Interested parties are requested to make their own enquiries to the relevant authorities as to the availability of services.

Important Notice to Prospective Buyers:

We draw your attention to the Special Conditions of Sale within the Legal Pack, referring to other charges in addition to the purchase price which may become payable. Such costs may include Search Fees, reimbursement of Sellers costs and Legal Fees, and Transfer Fees amongst others.

Additional Fees

Administration Charge - Purchasers will be required to pay an administration fee of £1,800 inc VAT

Disbursements - Please see the legal pack for any disbursements listed that may become payable by the purchaser on completion.

View Larger Map

Disclaimer: The map preview provided above is for general guidance only and may not accurately reflect the exact location or surrounding buildings. Prospective buyers and interested parties are strongly advised to independently verify the precise location and surroundings before bidding.