For Sale By Auction | 12:00, 25 March 2025 | Lot 7

339 Dickson Road, Blackpool, Lancashire, FY1 2JL

Sold £125,000

  • Block of Apartments
  • 5 Bedrooms
  • Tenure: Freehold

Call the team on 0161 925 3254 for more information

Auction Date

Tue 25/03/2025

Auction Time

12:00

Auction Venue

Live Stream

*Investment Opportunity*

Representing an ideal addition to any Landlord portfolio, this sizeable end terraced dwelling comprises four self contained flats collectively producing a healthy gross return approaching £22,000 per annum, in excess of 17% based against the quoted guide price. We understand there is also a large basement which may potentially also lend itself conversion and are informed by the current owners that prior to their ownership was utilised as additional accommodation which may possibly be reinstated, subject to any necessary permissions. However, we have not received any documented evidence to confirm this therefore interested parties should make their own investigations to satisfaction prior to bidding. The property is conveniently located within close proximity of town centre amenities whilst the famous promenade is situated within a short walk. Auction House Manchester has not inspected the premises and the photographic suite shown is for general guidance purposes only and provided by a managing agent and historic in nature.

Tenure

Freehold

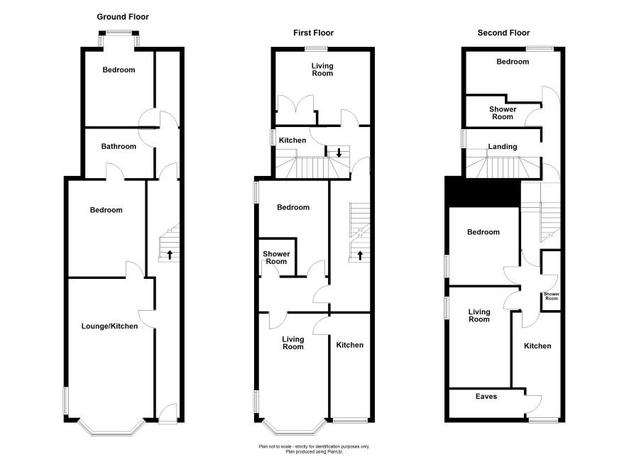
Ground Floor

Entrance Hall Lounge/Kitchen Bedroom Bathroom Bedroom

First Floor

Living Room Kitchen Bedroom Kitchen Shower Room Living Room

Second Floor

Landing Bedroom Shower Room Bedroom Living Room Kitchen Shower Room

Energy Efficiency Rating (EPC)

Current Rating D,C,C,C

Services

Interested parties are requested to make their own enquiries to the relevant authorities as to the availability of services.

Local Authority

Blackpool Borough Council - Council tax band A for each flat

Important Notice to Prospective Buyers:

We draw your attention to the Special Conditions of Sale within the Legal Pack, referring to other charges in addition to the purchase price which may become payable. Such costs may include Search Fees, reimbursement of Sellers costs and Legal Fees, and Transfer Fees amongst others.

Additional Fees

Administration Charge - Purchasers will be required to pay an administration fee of 0.9% inc VAT, subject to a minimum of £1500 inc VAT.

Disbursements - Search Fees: £300 inc VAT.

Please see the legal pack for any disbursements listed that may become payable by the purchaser on completion.

View Larger Map

Disclaimer: The map preview provided above is for general guidance only and may not accurately reflect the exact location or surrounding buildings. Prospective buyers and interested parties are strongly advised to independently verify the precise location and surroundings before bidding.