For Sale By Auction | 12:00, 13 May 2025 | Lot 28

30 Hall Carr Road, Rawtenstall, Rossendale, Lancashire, BB4 6AW

Sold £124,000

  • End of Terrace House
  • 3 Bedrooms
  • Tenure: Leasehold

Call the team on 0161 925 3254 for more information

Auction Date

Tue 13/05/2025

Auction Time

12:00

Auction Venue

Live Stream

Viewing Times:

Thu 24 Apr

10:00am-10:30am

Thu 1 May

10:00am-10:30am

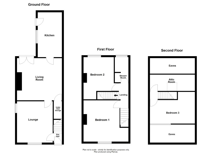
This substantial stone terraced property, situated near the vibrant centre of Rawtenstall, offers an ideal opportunity for those looking for a project with plenty of scope to add value. Internally, accommodation comprises entrance hallway, lounge, dining room and kitchen to the ground floor. To the first floor are two bedrooms and a shower room. The second floor provides additional versatile space, with a third bedroom to the front and a loft room to the rear. Externally, the property benefits from small, low-maintenance front and rear gardens. Located close to the thriving amenities of Rawtenstall, provides easy access to a range of shops, cafes, schools, and transport links, while the surrounding countryside offers excellent opportunities for outdoor activities. We have been advised the 3rd bedroom has been done to building regulations however we have not had sight of these, buyers are advised to carry out their own research before bidding. Lease Length - 959 years from 1 January 1921 Ground Rent - £2 as per register

Tenure

Leasehold

Ground Floor

Lounge Living Room Kitchen

First Floor

Bedroom 1 Bedroom 2 Shower Room

Second Floor

Bedroom 3 Attic Room

Energy Efficiency Rating (EPC)

Current Rating F

Services

Interested parties are requested to make their own enquiries to the relevant authorities as to the availability of services.

Local Authority

Rossendale Borough Council - Council Tax Band A

Important Notice to Prospective Buyers:

We draw your attention to the Special Conditions of Sale within the Legal Pack, referring to other charges in addition to the purchase price which may become payable. Such costs may include Search Fees, reimbursement of Sellers costs and Legal Fees, and Transfer Fees amongst others.

Additional Fees

Administration Charge - Purchasers will be required to pay an administration fee of 1.2% inc VAT, subject to a minimum of £1500 inc VAT.

Disbursements - Search Fees £300 inc VAT.

Please see the legal pack for any disbursements listed that may become payable by the purchaser on completion.

View Larger Map

Disclaimer: The map preview provided above is for general guidance only and may not accurately reflect the exact location or surrounding buildings. Prospective buyers and interested parties are strongly advised to independently verify the precise location and surroundings before bidding.