Postponed | Lot 11

207 Oldham Road, Ashton-under-Lyne, OL7 9AS

Postponed

  • End of Terrace House
  • 4 Bedrooms
  • Tenure: Freehold

Call the team on 0161 925 3254 for more information

Auction Date

Tue 13/05/2025

Auction Time

12:00

Auction Venue

Live Stream

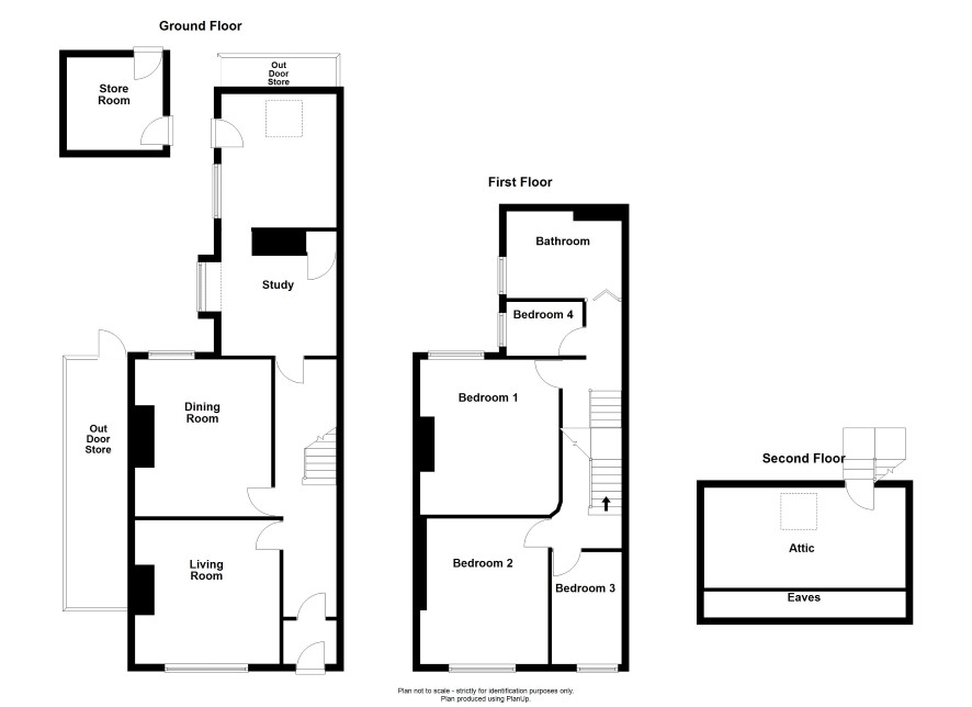
A substantial, four bedroom end of terrace located close to the centre of Ashton-under-Lyne. The property requires some refurbishment but offers lots of potential. The accommodation comprises entrance hall, lounge, sitting room, dining room and kitchen to the ground floor. To the first floor there are four bedrooms and a bathroom. There is also a useful loft room to the second floor. Outside there are several sheds/outhouses and a courtyard garden. Ideally situated for easy access to both Ashton and Oldham town centres including local shops, schools, colleges, recreational facilities and excellent transport links such as the Metrolink and the M60 motorway network.

Tenure

Freehold

Ground Floor

Living Room Dining Room Study Kitchen Outdoor Store Room

First Floor

Bedroom 1 Bedroom 2 Bedroom 3 Bedroom 4 Bathroom

Energy Efficiency Rating (EPC)

Current Rating F

Services

Interested parties are requested to make their own enquiries to the relevant authorities as to the availability of services.

Local Authority

Tameside Metropolitan Borough Council - Council Tax Band A

Important Notice to Prospective Buyers:

We draw your attention to the Special Conditions of Sale within the Legal Pack, referring to other charges in addition to the purchase price which may become payable. Such costs may include Search Fees, reimbursement of Sellers costs and Legal Fees, and Transfer Fees amongst others.

Additional Fees

Administration Charge - Purchasers will be required to pay an administration fee of 1.2% inc VAT, subject to a minimum of £1500 inc VAT.

Disbursements - Search Fees £300 inc VAT.

Please see the legal pack for any disbursements listed that may become payable by the purchaser on completion.

View Larger Map

Disclaimer: The map preview provided above is for general guidance only and may not accurately reflect the exact location or surrounding buildings. Prospective buyers and interested parties are strongly advised to independently verify the precise location and surroundings before bidding.