For Sale By Auction | 12:00, 08 July 2025 | Lot 11

175 & 177 Stamford Street Central, Ashton-under-Lyne, OL6 7PS

Sold £223,000

  • Commercial Property
  • Tenure: Freehold

Call the team on 0161 925 3254 for more information

Auction Date

Tue 08/07/2025

Auction Time

12:00

Auction Venue

Live Stream

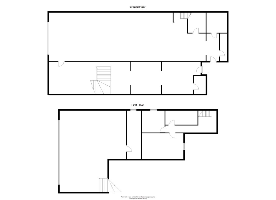
The property provides two adjoining retail properties with accommodation over ground and first floors of traditional construction with brickwork elevations under a flat roof. The property benefits from a communal yard. Part let/part vacant retail units with accommodation over two floors that may suit redevelopment of whole or part subejct to planning. Combined GIA is circa 460 SQ M (4,960 SQ FT) Located fronting Stamford Street Central in the heart of Ashton-Under-Lyne and a short walk to Ashton Market and the Ladysmith shopping centre. Please note, we have been advised the tenant in occupation has gone into liquidation. The current owners are in the process of regularising the tenancy with them on to a licence which will be completed in due course

Tenure

Freehold

Energy Efficiency Rating (EPC)

Current Rating 175 - D / 177 - C

Services

Interested parties are requested to make their own enquiries to the relevant authorities as to the availability of services.

Important Notice to Prospective Buyers:

We draw your attention to the Special Conditions of Sale within the Legal Pack, referring to other charges in addition to the purchase price which may become payable. Such costs may include Search Fees, reimbursement of Sellers costs and Legal Fees, and Transfer Fees amongst others.

Additional Fees

Administration Charge - Purchasers will be required to pay an administration fee of 1.2% inc VAT, subject to a minimum of £1500 inc VAT.

Disbursements - Please see the legal pack for any disbursements listed that may become payable by the purchaser on completion.

View Larger Map

Disclaimer: The map preview provided above is for general guidance only and may not accurately reflect the exact location or surrounding buildings. Prospective buyers and interested parties are strongly advised to independently verify the precise location and surroundings before bidding.