For Sale By Auction | 12:00, 08 July 2025 | Lot 37

1 Gorse Road, Blackburn, Lancashire, BB2 6LY

Sold £362,000

  • Town House
  • 5 Bedrooms
  • Tenure: Freehold

Call the team on 0161 925 3254 for more information

Auction Date

Tue 08/07/2025

Auction Time

12:00

Auction Venue

Live Stream

Viewing Times:

Fri 13 Jun

11:30am-12:30pm

Tue 24 Jun

11:00am-12:00pm

Fri 4 Jul

1:30pm-2:00pm

Stunning example of Victorian archictecture and design with accommodation over 7 floors including basement! Whilst the proerty requires moderisation and some structural work in general to include repair from water ingress to floorboards/joists and water damage in one part of the main house, the interior has kept many original/period features throughout and the sheer size of the accommodation is suprising. The house has gardens to three sides, an outhouse, driveway and a detached garage with power and an electric up and over door. Located only a short distance from the main town centre, it is close to local schools and other amenities nearby.

Tenure

Freehold

Basement

5 x store rooms

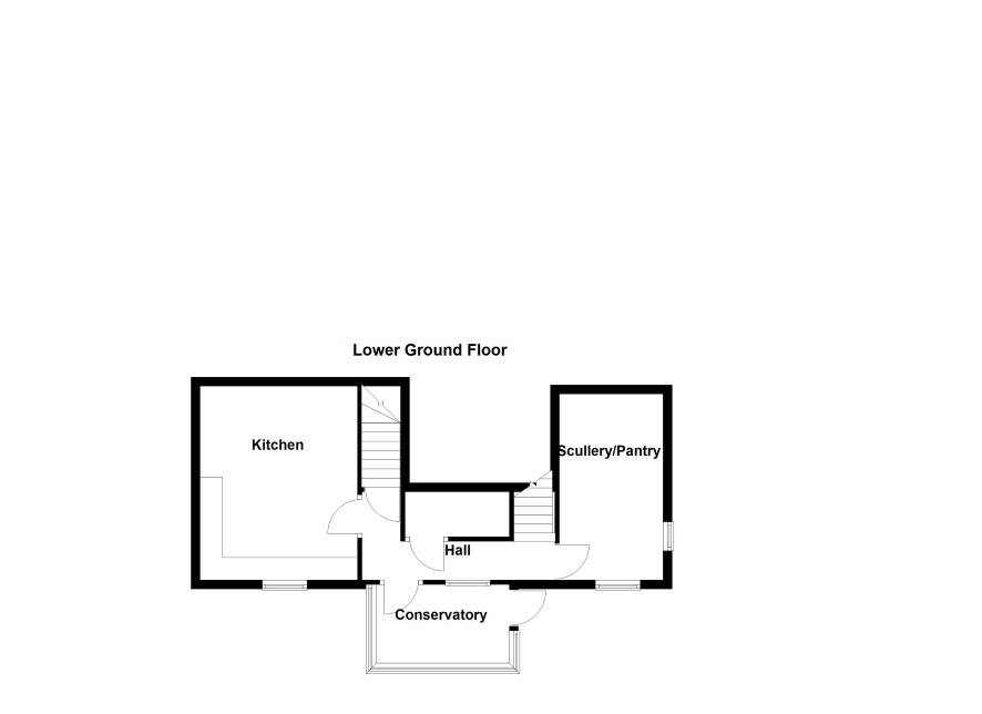
Lower Ground Floor

Kitchen Scullery/Pantry Conservatory

Ground Floor

Lounge Living Room

First Floor

Bedroom Shower Room WC

Second Floor

Bedroom x2 Jack & Jill

Third Floor

Bedroom Room

Fourth Floor

Bedroom Room

Energy Efficiency Rating (EPC)

Current Rating E

Services

Interested parties are requested to make their own enquiries to the relevant authorities as to the availability of services.

Local Authority

Blackburn with Darwen Borough Council - Council Tax Band E

Important Notice to Prospective Buyers:

We draw your attention to the Special Conditions of Sale within the Legal Pack, referring to other charges in addition to the purchase price which may become payable. Such costs may include Search Fees, reimbursement of Sellers costs and Legal Fees, and Transfer Fees amongst others.

Additional Fees

Administration Charge - Purchasers will be required to pay an administration fee of 1.2% inc VAT, subject to a minimum of £1500 inc VAT.

Disbursements - Please see the legal pack for any disbursements listed that may become payable by the purchaser on completion.

View Larger Map

Disclaimer: The map preview provided above is for general guidance only and may not accurately reflect the exact location or surrounding buildings. Prospective buyers and interested parties are strongly advised to independently verify the precise location and surroundings before bidding.