For Sale By Auction | 12:00, 08 July 2025 | Lot 25

74 Rooley Moor Road, Rochdale, Manchester, OL12 7BS

Sold £206,000

  • Semi-Detached House
  • 4 Bedrooms
  • Tenure: Leasehold

Call the team on 0161 925 3254 for more information

Auction Date

Tue 08/07/2025

Auction Time

12:00

Auction Venue

Live Stream

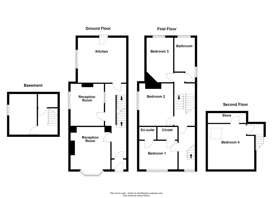
A substantial, four bedroom semi-detached home with accommodation spread over four floors located in a convenient position close to local schools, shops and restaurants. The property offers a great amount of potential and has many period features throughout - internal viewing comes highly recommended and will reveal an entrance porch and hallway, two reception rooms, and kitchen to the ground floor. To the lower ground floor is a useful utility/pantry and a storage room. To the first floor there are three spacious rooms, one with an en-suite shower room plus a family bathroom. To the second floor is a fourth bedroom. Externally there are gardens to the front & rear. We have been advised the 4th bedroom has been done to building regulations however we have not had sight of these, buyers are advised to carry out their own research before bidding. Lease Length - 999 years from 25.3.1869 Ground Rent - £18.10s.0d As per the register

Tenure

Leasehold

Basement

Ground Floor

Reception Room Second Reception Room Kitchen

First Floor

Bedroom 1 with en-suite Bedroom 2 Bedroom 3 Bathroom

Second Floor

Bedroom 4

Energy Efficiency Rating (EPC)

Current Rating D

Services

Interested parties are requested to make their own enquiries to the relevant authorities as to the availability of services.

Local Authority

Rochdale Metropolitan Borough Council - Council Tax Band C

Important Notice to Prospective Buyers:

We draw your attention to the Special Conditions of Sale within the Legal Pack, referring to other charges in addition to the purchase price which may become payable. Such costs may include Search Fees, reimbursement of Sellers costs and Legal Fees, and Transfer Fees amongst others.

Additional Fees

Administration Charge - Purchasers will be required to pay an administration fee of 1.2% inc VAT, subject to a minimum of £1500 inc VAT.

Disbursements - Please see the legal pack for any disbursements listed that may become payable by the purchaser on completion.

View Larger Map

Disclaimer: The map preview provided above is for general guidance only and may not accurately reflect the exact location or surrounding buildings. Prospective buyers and interested parties are strongly advised to independently verify the precise location and surroundings before bidding.