For Sale By Auction | 12:00, 09 December 2025 | Lot 6

295 Shaw Road, Royton, Oldham, OL2 6DY

Sold £104,000

  • Terraced House
  • 2 Bedrooms
  • Tenure: Leasehold

Call the team on 0161 925 3254 for more information

Auction Date

Tue 09/12/2025

Auction Time

12:00

Auction Venue

Live Stream

Viewing Times:

Mon 17 Nov

10:45am-11:15am

Mon 24 Nov

10:45am-11:15am

Mon 1 Dec

10:45am-11:15am

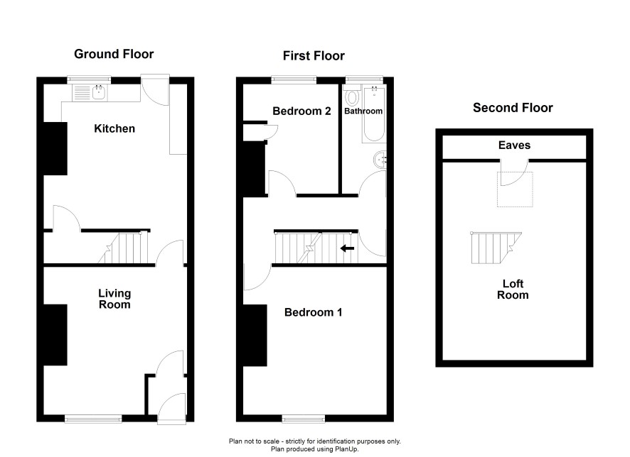
A two bedroom terraced property which requires updating throughout, presenting an excellent opportunity for anyone looking for their next project. Internal inspection will reveal an entrance vestibule, lounge, kitchen, two bedrooms and a bathroom. There is also a useful loft room to the second floor. Externally, there are gardens to the front & rear. Located in a popular and convenient location close to the amenities of both Royton and Shaw, including schools, shops and transport links. Please note, we have been made aware that there are potential structural issues with the property. Potential bidders are advised to carry out their own research in this regard prior to bidding. Lease Length - 995 years from 20 January 1893 Ground Rent - £2

Tenure

Leasehold

Ground Floor

Living Room Kitchen

First Floor

Bedroom 1 Bedroom 2 Bathroom

Energy Efficiency Rating (EPC)

Current Rating E

Services

Interested parties are requested to make their own enquiries to the relevant authorities as to the availability of services.

Local Authority

Oldham Metropolitan Borough Council - Council tax band A

Important Notice to Prospective Buyers:

We draw your attention to the Special Conditions of Sale within the Legal Pack, referring to other charges in addition to the purchase price which may become payable. Such costs may include Search Fees, reimbursement of Sellers costs and Legal Fees, and Transfer Fees amongst others.

Additional Fees

Administration Charge - Purchasers will be required to pay an administration fee of 1.2% inc VAT, subject to a minimum of £1500 inc VAT.

Disbursements - Search Fees: £300 inc VAT.

Please see the legal pack for any disbursements listed that may become payable by the purchaser on completion.

View Larger Map

Disclaimer: The map preview provided above is for general guidance only and may not accurately reflect the exact location or surrounding buildings. Prospective buyers and interested parties are strongly advised to independently verify the precise location and surroundings before bidding.