For Sale By Auction | 12:00, 03 February 2026

Land, 2 Bridge Street, Oldham, OL1 1EA

*Guide | £140,000+ (plus fees)

  • Land
  • Tenure: Freehold

Call the team on 0161 925 3254 for more information

Auction Date

Tue 03/02/2026

Auction Time

12:00

Auction Venue

Live Stream

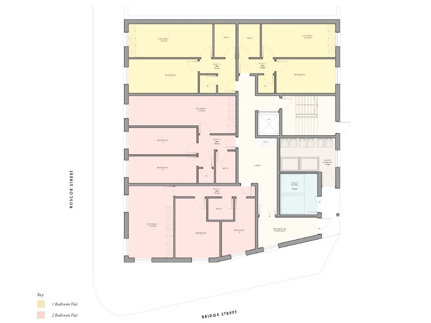
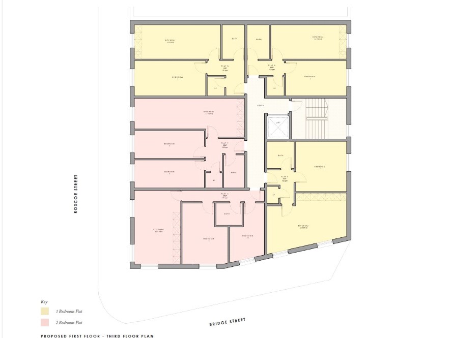
Parcel of land with Planning Permission granted under reference: FUL/350819/23 for the development of 19 residential units (8 two-bed flats and 11 one-bed flats). Erection of five storey building consisting of 19 No. apartments at Ground, First, Second and Third Floor and Lower ground floor car parking

Tenure

Freehold

Services

Interested parties are requested to make their own enquiries to the relevant authorities as to the availability of services.

Local Authority

Oldham Metropolitan Borough Council

Important Notice to Prospective Buyers:

We draw your attention to the Special Conditions of Sale within the Legal Pack, referring to other charges in addition to the purchase price which may become payable. Such costs may include Search Fees, reimbursement of Sellers costs and Legal Fees, and Transfer Fees amongst others.

Additional Fees

Administration Charge - Purchasers will be required to pay an administration fee of 1.2% inc VAT, subject to a minimum of £1500 inc VAT.

Disbursements - Please see the legal pack for any disbursements listed that may become payable by the purchaser on completion.

View Larger Map

Disclaimer: The map preview provided above is for general guidance only and may not accurately reflect the exact location or surrounding buildings. Prospective buyers and interested parties are strongly advised to independently verify the precise location and surroundings before bidding.