For Sale By Auction | 12:00, 03 February 2026

40 Manchester Road, Tyldesley, M29 8DP

*Guide | £50,000+ (plus fees)

  • Terraced House
  • 2 Bedrooms
  • Tenure: Leasehold

Call the team on 0161 925 3254 for more information

Auction Date

Tue 03/02/2026

Auction Time

12:00

Auction Venue

Live Stream

NOW TO BE SOLD WITH VACANT POSSESSION! NEW PHOTOS TO BE ADDED SOON.

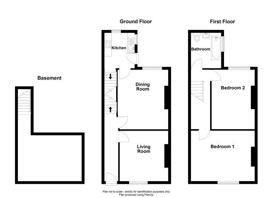
A two-bedroom terraced property in need of renovation, situated in the heart of Tyldesley which offers convenient access to a wide range of local amenities, and transport links. Internal accommodation comprises entrance hall, lounge, dining room, kitchen, two bedrooms and a bathroom. To the lower ground floor there is also a cellar. Externally, there is an enclosed yard to the rear. Lease Length - 900 years from 24 June 1873 Ground Rent - TBC

Tenure

Leasehold

Ground Floor

Living Room Dining Room Kitchen

First Floor

Bedroom 1 Bedroom 2 Bathroom

Energy Efficiency Rating (EPC)

Current Rating D

Services

Interested parties are requested to make their own enquiries to the relevant authorities as to the availability of services.

Local Authority

Wigan Metropolitan Borough Council - Band A

Important Notice to Prospective Buyers:

We draw your attention to the Special Conditions of Sale within the Legal Pack, referring to other charges in addition to the purchase price which may become payable. Such costs may include Search Fees, reimbursement of Sellers costs and Legal Fees, and Transfer Fees amongst others.

Additional Fees

Administration Charge - Purchasers will be required to pay an administration fee of 1.2% inc VAT, subject to a minimum of £1500 inc VAT.

Disbursements - Search Fees: £300 inc VAT.

Please see the legal pack for any disbursements listed that may become payable by the purchaser on completion.

View Larger Map

Disclaimer: The map preview provided above is for general guidance only and may not accurately reflect the exact location or surrounding buildings. Prospective buyers and interested parties are strongly advised to independently verify the precise location and surroundings before bidding.