For Sale By Auction | 12:00, 01 April 2025 | Lot 12

6 Church Terrace, Blaydon-On-Tyne, Tyne and Wear NE21 4AH

Sold £53,000

  • Terraced House
  • 1 Bedroom
  • Tenure: See Legal Pack

Call the team on 0191 908 9691 for more information

Auction Date

Tue 01/04/2025

Auction Time

12:00

Auction Venue

Live Stream

Investment property

One bedroom terraced property located in a popular residential area close to local amenities. In need of updating, it comprises: hall, llunge and kitchen to the ground floor, bedroom and bathroom to the first floor. Suit the developer/investor

Tenure

See Legal Pack

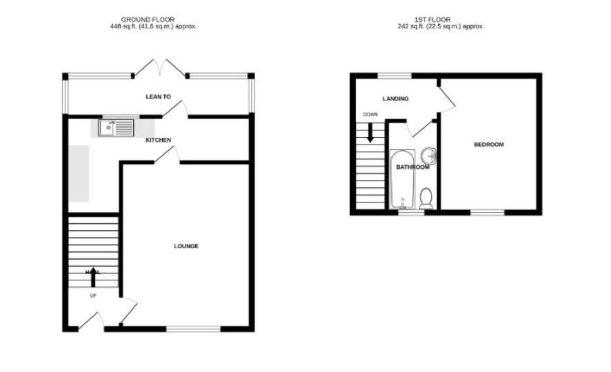
Ground Floor

Hall with stairs to the first floor Lounge 16'3 x 12'9 Kitchen 18' x 4'5

First Floor

Landing Bedroom 14'3 x 9'9 Bathroom

Outside

Enclosed rear yard

Viewing

To view, please call Your Move, Whickham on 0191 488 7968

Energy Efficiency Rating (EPC)

Current Rating F

Services

Interested parties are invited to make their own enquiries to the relevant authorities as to the availability of the services.

Local Authority

Gateshead Metropolitan Borough Council

Solicitors

Patterson Wolf & Co, Whitewell House, Ref: Patterson Wolf & Co, Tel: 0191 413 3444

Offered in association with

Your Move Chris Stonock

Important Notice to Prospective Buyers:

We draw your attention to the Special Conditions of Sale within the Legal Pack, referring to other charges in addition to the purchase price which may become payable. Such costs may include Search Fees, reimbursement of Sellers costs and Legal Fees, and Transfer Fees amongst others.

Additional Fees

Buyer's Premium - £1800 inc VAT payable on exchange of contracts.

Administration Charge - £1200 inc VAT payable on exchange of contracts.

Disbursements - Please see the legal pack for any disbursements listed that may become payable by the purchaser on completion.

View Larger Map

Disclaimer: The map preview provided above is for general guidance only and may not accurately reflect the exact location or surrounding buildings. Prospective buyers and interested parties are strongly advised to independently verify the precise location and surroundings before bidding.