Sold Prior | Lot 14

56 Westmorland Avenue, Blackpool, Lancashire FY1 5PG

Sold Prior

  • Block of Apartments
  • Tenure: Freehold

Call the team on 01772 772450 for more information

Auction Date

Thu 23/03/2023

Auction Time

12:00

Auction Venue

Online Auction

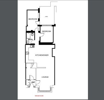
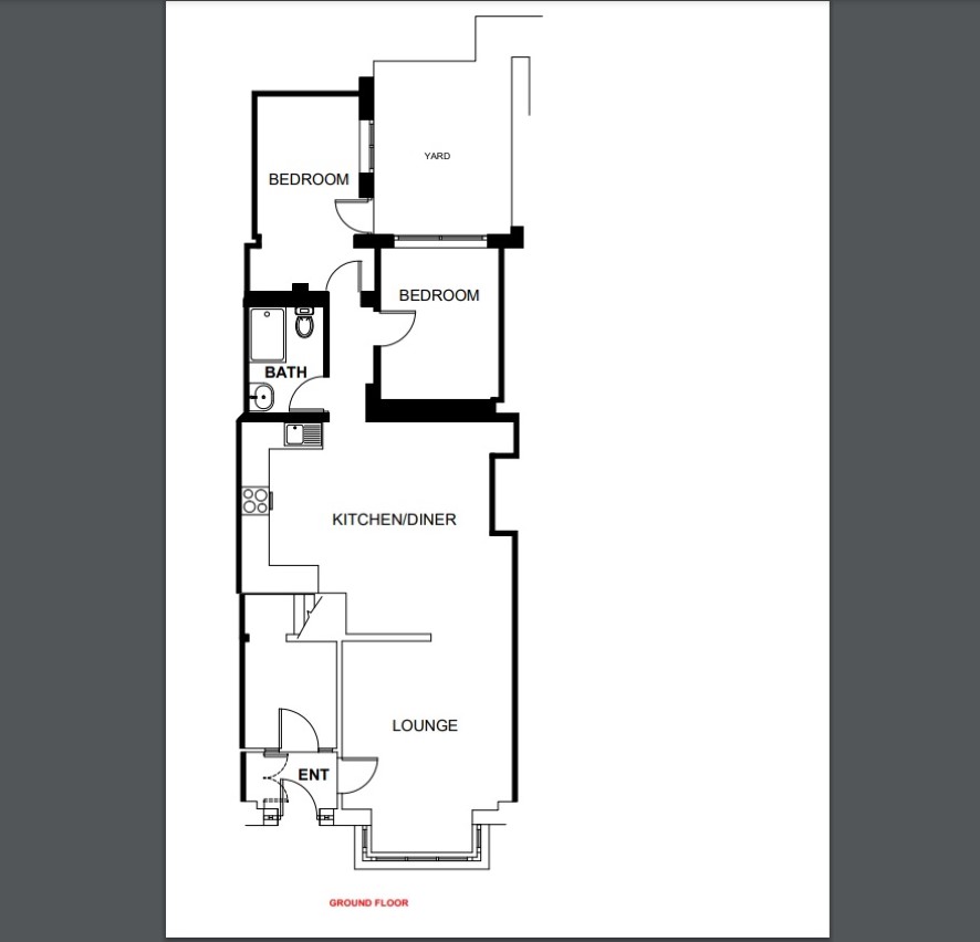
Property Spilt Into Two Bedroom Flat And Four Bedroom Maisonette

Property Split Into Two Self Contained Flats. The property comprises of a two bedroom ground floor flat, with an open plan living space, two bedrooms and a bathroom. On the first floor there is a four bedroom maisonette with a kitchen, lounge, bathroom and four double bedrooms. The property is in excellent condition as the owner has recently refurbished both flats. The property is located on a short distance from the town centre and local tourist attractions. The ground floor flat is current tenanted and generates £590 pcm, please see legal pack for details. Auctionhouse are informed that the first floor maisonette is let on a short term basis and has the potential to generate in excess of £20,000 pa. Tenure: Freehold Title number: LA690339 Council Tax Band : A Finance is available on this lot. For a decision-in-principle visit togethermoney.com/amydip/ ANTI-MONEY LAUNDERING REGULATIONS In accordance with Anti-Money Laundering Regulations, two forms of identification and confirmation of the source of funding will be required from the successful purchaser. Every effort has been made to confirm the accuracy of the lot details including any defect in the title both with the vendor and their solicitor. Auction House will not be held responsible for any failure to disclose any such defects. Any purchasers choosing to buy without viewing in person are doing so at their own risk and acknowledge that the auctioneer will not be held responsible for any issues that may arise due to them being unintentionally missed from the video or sales particulars. Please refer to legal pack for additional fees and the Auction Information document for guidance prior to bidding.

Tenure

Freehold

Energy Efficiency Rating (EPC)

Current Rating E

Local Authority

Blackpool Borough Council

Solicitors

Napthens LLP, Ref: Edward White, Tel: 01253 832358

Important Notice to Prospective Buyers:

We draw your attention to the Special Conditions of Sale within the Legal Pack, referring to other charges in addition to the purchase price which may become payable. Such costs may include Search Fees, reimbursement of Sellers costs and Legal Fees, and Transfer Fees amongst others.

Additional Fees

Administration Charge - 1.75% inc VAT of the purchase price, subject to a minimum of £1750 inc VAT, payable on exchange of contracts.

Disbursements - Please see the legal pack for any disbursements listed that may become payable by the purchaser on completion.

View Larger Map

Disclaimer: The map preview provided above is for general guidance only and may not accurately reflect the exact location or surrounding buildings. Prospective buyers and interested parties are strongly advised to independently verify the precise location and surroundings before bidding.