Postponed | Lot 71

Plot 16, Lynn Street / Stafford Street, Werneth , Oldham, Greater Manchester OL9 7DA

Postponed

  • Land
  • Tenure: Leasehold.

Call the team on 01772 772450 for more information

Auction Date

Wed 16/07/2025

Auction Time

12:00

Auction Venue

Online Auction

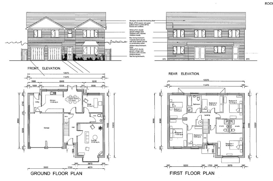
Building Plot – Consent For Six Bed House With Integral Garage

Residential building plot situated off Lynn Street, close to the junction with Stafford Street, benefitting from consent for a six bed house with integral garage. The house (when built) is intended to briefly comprise the following: Ground Floor – 74.2 m2 / 799 sq.ft. (excl. garage) Entrance hall, lounge, study, kitchen/family dining room, utility and WC. Double garage. First Floor – 96.81 m2 / 1,042 sq.ft Six bedrooms (2 x ensuite) plus bathroom. Total floor Area – 171.01 m2 / 1,841 sq.ft. Garage – 27.04 m2 / 291 sq.ft. Planning Oldham Council Land Bounded By Stafford Street, Cambridge Street, Lynn Street And Durham Street, Werneth, Oldham. Planning Number CD/339272/16 & PA/335697/14 Alternative Reference{tab}PP-05560252 Tenure: Long Leasehold Title number: MAN384462 (to be split from – see legal pack) Length of Lease/Term: 250 years from November 2017 Ground Rent : £ Service Charge: £ Council Tax Band : Local Authority: Oldham Finance is available on this lot. For a decision-in-principle visit togethermoney.com/amydip/

Tenure

Leasehold.

IMPORTANT INFORMATION

Buying at auction is a contractual commitment, you are legally obliged to buy the lot on the terms of the sale memorandum at the price you bid. If you are the successful bidder, you are required to pay the deposit and auction fees immediately. As agent for the seller, we treat any failure to satisfy your obligations as your repudiation of the contract and the seller may then have a claim against you for breach of contract. You must not bid unless you wish to be bound by the common conditions of auction.

ANTI-MONEY LAUNDERING REGULATIONS

In accordance with Anti-Money Laundering Regulations, two forms of identification and confirmation of the source of funding will be required from the successful purchaser. Every effort has been made to confirm the accuracy of the lot details including any defect in the title both with the vendor and their solicitor. Auction House will not be held responsible for any failure to disclose any such defects. Any purchasers choosing to buy without viewing in person are doing so at their own risk and acknowledge that the auctioneer will not be held responsible for any issues that may arise due to them being unintentionally missed from the video or sales particulars. Please refer to legal pack for additional fees and the Auction Information document for guidance prior to bidding.

Local Authority

Oldham Metropolitan Borough Council

Important Notice to Prospective Buyers:

We draw your attention to the Special Conditions of Sale within the Legal Pack, referring to other charges in addition to the purchase price which may become payable. Such costs may include Search Fees, reimbursement of Sellers costs and Legal Fees, and Transfer Fees amongst others.

Additional Fees

Buyer's Premium - 1.2% inc VAT of the purchase price, subject to a minimum of £1200 inc VAT, payable on exchange of contracts.

Administration Charge - 2.5% inc VAT of the purchase price, subject to a minimum of £1980 inc VAT, payable on exchange of contracts.

Disbursements - Please see the legal pack for any disbursements listed that may become payable by the purchaser on completion.

View Larger Map

Disclaimer: The map preview provided above is for general guidance only and may not accurately reflect the exact location or surrounding buildings. Prospective buyers and interested parties are strongly advised to independently verify the precise location and surroundings before bidding.