For Sale By Auction | 12:00, 15 April 2026

92-92a Central Drive, Blackpool, Lancashire FY1 5QF

*Guide | £65,000 (plus fees)

  • Retail Property (out of town)
  • Tenure: Freehold

Call the team on 01772 772450 for more information

Auction Date

Wed 15/04/2026

Auction Time

12:00

Auction Venue

Online Auction

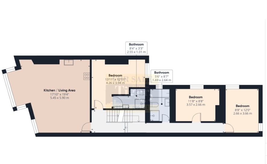
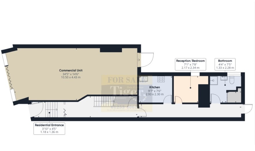
Vacant Three Storey Mixed Use Building – Ground Floor Commercial Unit With 6 Bed Residential Accommodation

Deceptively spacious three storey property which briefly comprises a ground floor commercial unit, requiring refurbishment, together with self-contained 6 bed residential accommodation over three floors. Accommodation Ground Floor - vacant commercial unit. Side entrance door to access the residential part of the building comprising of entrance hall, kitchen, bathroom and bedroom/storage on the ground floor. To the first floor there are three bedrooms, one with an ensuite, separate bathroom and open plan living room / kitchen to the front. On the second floor there are a further three bedrooms, one with ensuite, separate bathroom and a lounge to the front. Externally there is a rear yard area. The building may suit conversion to individual apartments or HMO, subject to the required consents being obtained. Planning From online research, we note that the property was granted consent in 2017 (Ref 16/0807) approved for the conversion of the ground floor A1 retail unit to a self contained C3 dwelling. In 2011 (ref10/1388) to convert the residential section to six bed student accommodation with shared facilities. Tenure: Freehold Title number: LA695755 Length of Lease/Term: Ground Rent : £ Service Charge: £ Council Tax Band : A Local Authority: Blackpool Finance is available on this lot. For a decision-in-principle visit togethermoney.com/amydip/

Tenure

Freehold

IMPORTANT INFORMATION

Buying at auction is a contractual commitment, you are legally obliged to buy the lot on the terms of the sale memorandum at the price you bid. If you are the successful bidder, you are required to pay the deposit and auction fees immediately. As agent for the seller, we treat any failure to satisfy your obligations as your repudiation of the contract and the seller may then have a claim against you for breach of contract. You must not bid unless you wish to be bound by the common conditions of auction.

ANTI-MONEY LAUNDERING REGULATIONS

In accordance with Anti-Money Laundering Regulations, two forms of identification and confirmation of the source of funding will be required from the successful purchaser. Every effort has been made to confirm the accuracy of the lot details including any defect in the title both with the vendor and their solicitor. Auction House will not be held responsible for any failure to disclose any such defects. Any purchasers choosing to buy without viewing in person are doing so at their own risk and acknowledge that the auctioneer will not be held responsible for any issues that may arise due to them being unintentionally missed from the video or sales particulars. Please refer to legal pack for additional fees and the Auction Information document for guidance prior to bidding.

Energy Efficiency Rating (EPC)

Current Rating Commercial Unit - C, Residential - D

Local Authority

Blackpool Borough Council

Important Notice to Prospective Buyers:

We draw your attention to the Special Conditions of Sale within the Legal Pack, referring to other charges in addition to the purchase price which may become payable. Such costs may include Search Fees, reimbursement of Sellers costs and Legal Fees, and Transfer Fees amongst others.

Additional Fees

Administration Charge - 2.75% inc VAT of the purchase price, subject to a minimum of £2750 inc VAT, payable on exchange of contracts.

Disbursements - Please see the legal pack for any disbursements listed that may become payable by the purchaser on completion.

View Larger Map

Disclaimer: The map preview provided above is for general guidance only and may not accurately reflect the exact location or surrounding buildings. Prospective buyers and interested parties are strongly advised to independently verify the precise location and surroundings before bidding.